Skip to the content

Plan #

1-1219

Base Price

$435.00

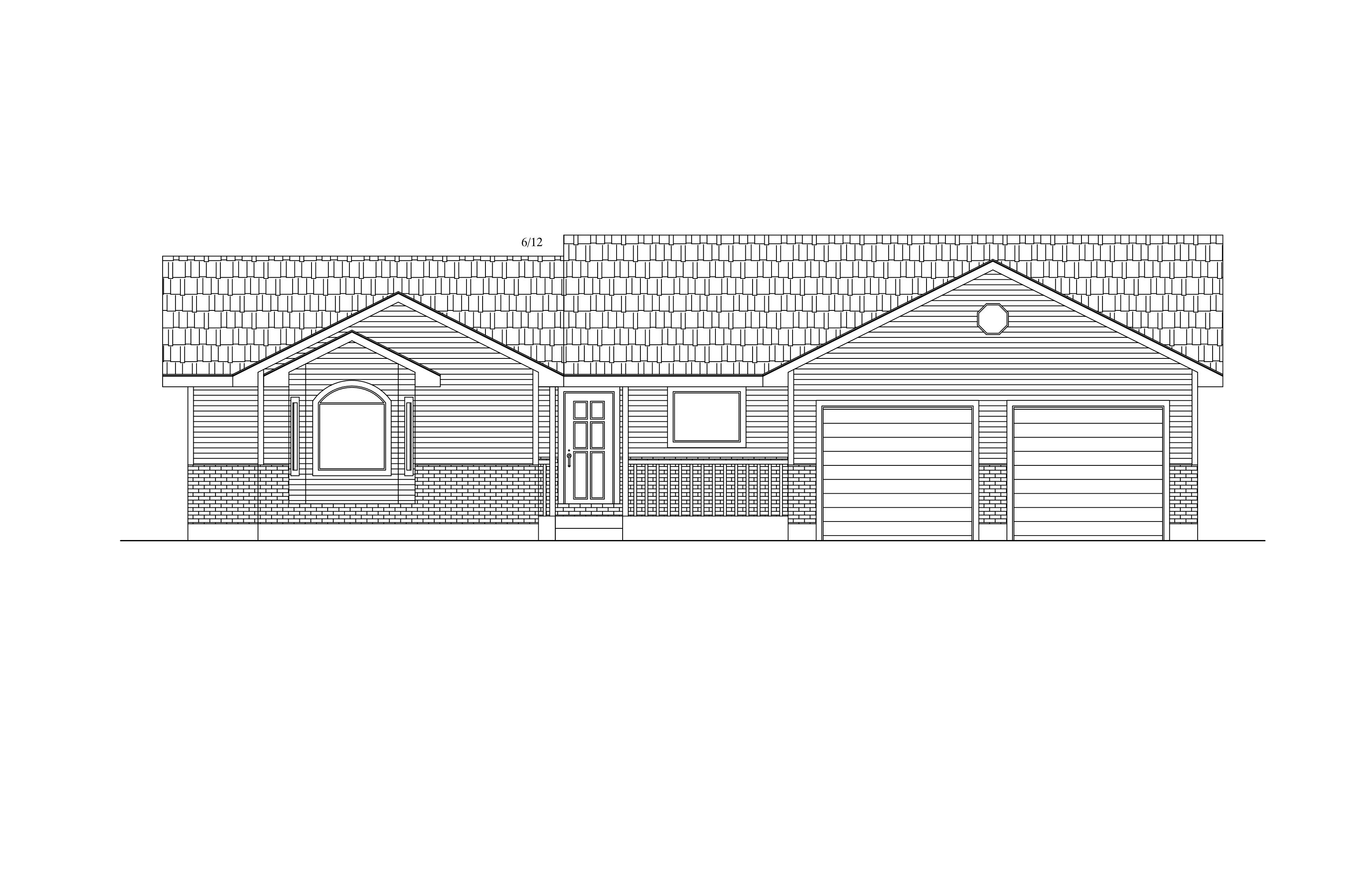
Single Family Home

  • Total Sq. Ft.

    2438
    1 Story
  • Beds

    5
    3 on main floor
  • Baths

    3
  • Bays

    2
  • Width

    60'- 0"
  • Depth

    48'- 0"

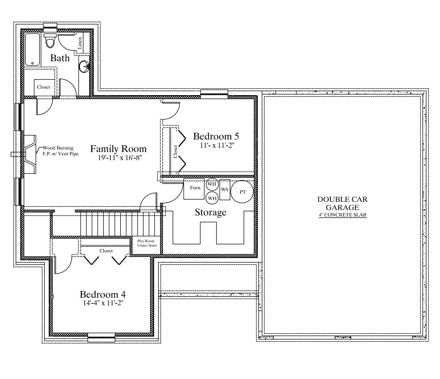
Single Story House Plan with Basement – 1219 Square Feet on Main Floor. Striking Beginner House Plan packed with terrific features! Plan boasts over 2400 Sq. Ft. with Five (5) Bedrooms and Three (3) Bathrooms. Main Floor includes a Fireplace, Mud Room, Pantry, and Covered Porch. Enjoy a Play Room under the Stairs.

Plan Information

Main Floor Square Feet
1219
Basement Square Feet
1219
Garage Square Feet
866
Main Floor Wall Height
9'- 0"
Basement Wall Height
8'- 0"
Foundation Type
Basement
Primary Roof Pitch
6/12
Base Price - PDF - Single Build
$435.00
PDF - 5 Sets Printed - Single Build
$485.00
CAD File - Unlimited Build
$1,295.00

Special Features

  • Covered Porch
  • Play Room Under Stairs

Interested in this plan?

Purchase this plan as is or request modifications. Add your notes to the popout form with the link below or give us a call to discuss your plan.