Skip to the content

Plan #

1-1380

Base Price

$435.00

Single Family Home

  • Total Sq. Ft.

    2723
    1 Story
  • Beds

    5
    3 on main floor
  • Baths

    3
  • Bays

    2
  • Width

    47'- 4"
  • Depth

    50'- 0"

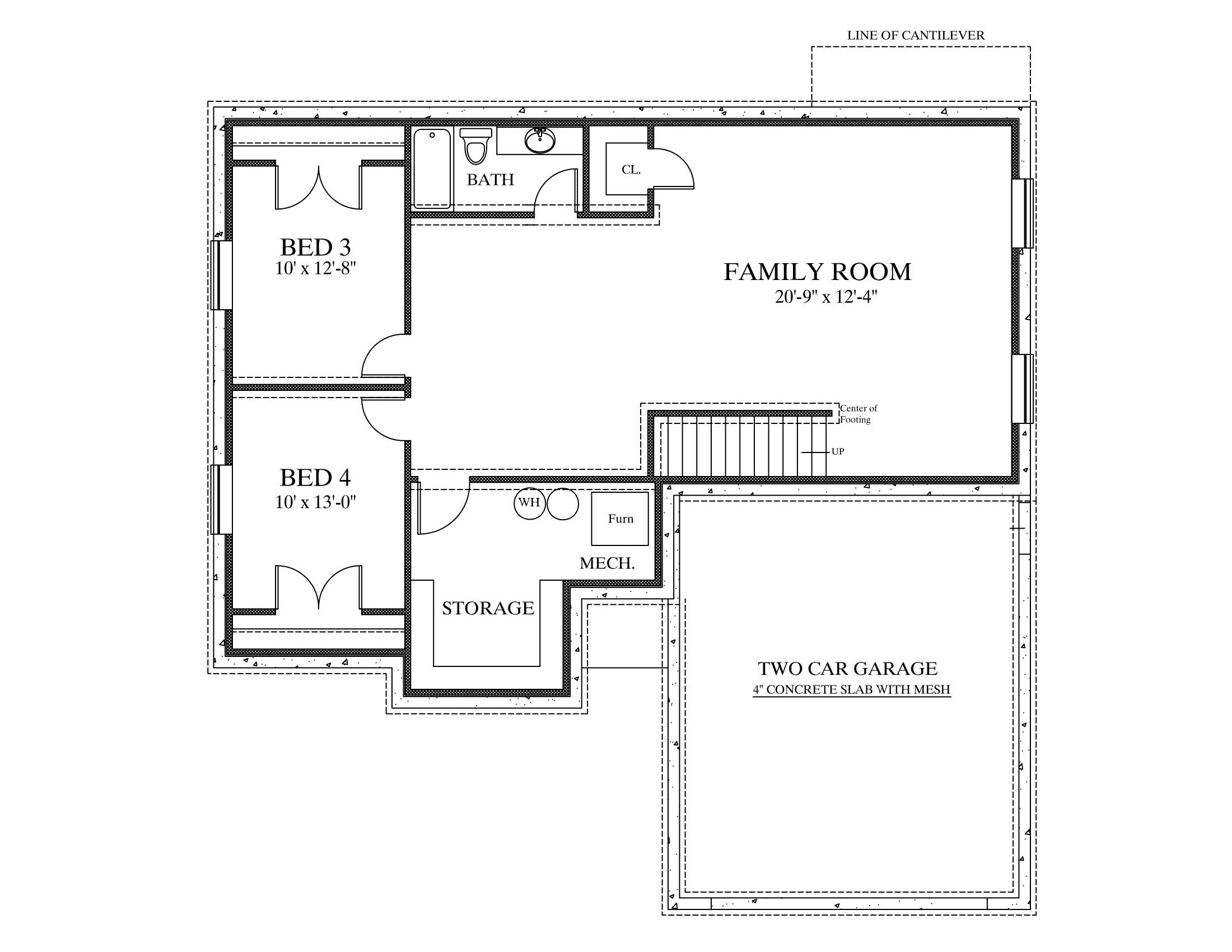
Single Story House Plan with Basement – 1380 Square Feet on Main Floor --- IMPRESSIVE STARTER HOME -- House Plan with over 2700 Sq. Ft. Plan has Five (5) Bedrooms and Three (3) Bathrooms. Basement includes Living Room and Cold Storage.

Plan Information

Main Floor Square Feet
1380
Basement Square Feet
1343
Garage Square Feet
502
Main Floor Wall Height
8'
Basement Wall Height
8'
Foundation Type
Basement
Primary Roof Pitch
6/12
Base Price - PDF - Single Build
$435.00
PDF - 5 Sets Printed - Single Build
$485.00
CAD File - Unlimited Build
$1,295.00

Special Features

  • Covered Porch
  • Breakfast Nook
  • Narrow Lot Fit

Interested in this plan?

Purchase this plan as is or request modifications. Add your notes to the popout form with the link below or give us a call to discuss your plan.