Skip to the content

Plan #

1-1429

Base Price

$525.00

Single Family Home

  • Total Sq. Ft.

    2858
    1 Story
  • Beds

    6
    3 on main floor
  • Baths

    3
  • Bays

    2
  • Width

    52'- 0"
  • Depth

    46'- 5"

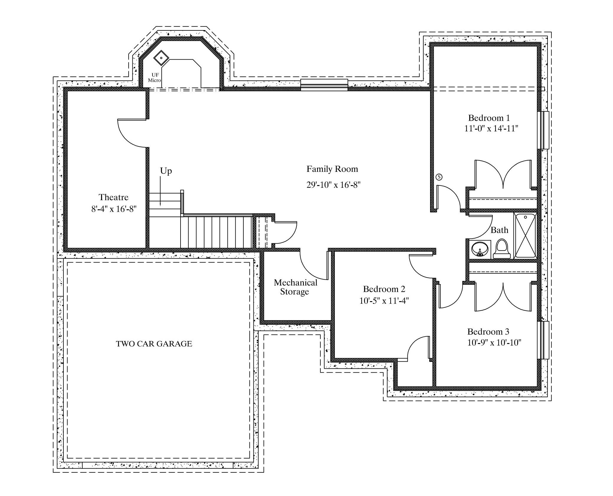
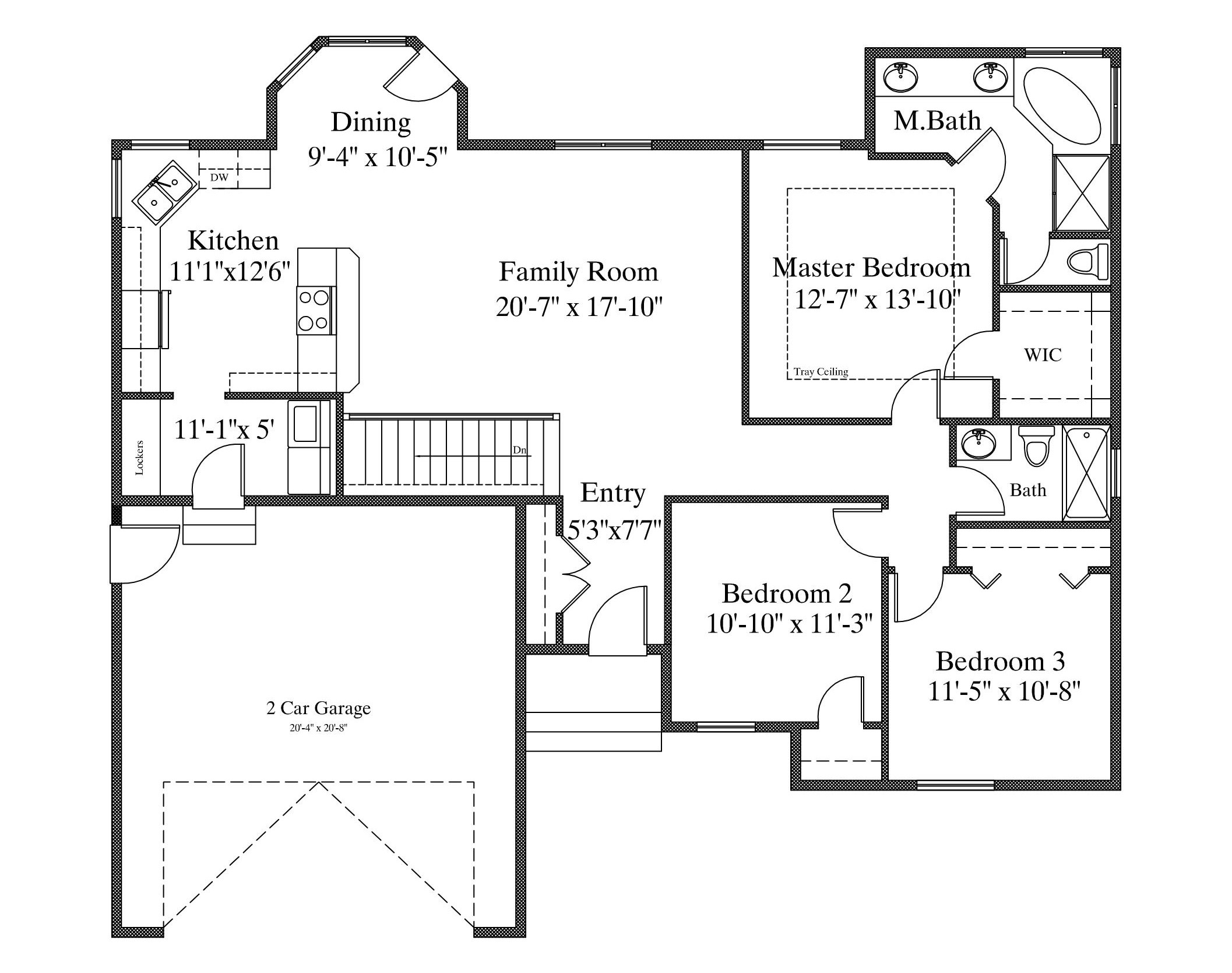
Single Story House Plan with Basement – 1-1429 Square Feet on Main Floor --- Stunning Family House Plan with over 2800 Sq. Ft. overall. Enjoy Six (6) Bedrooms, Three (3) Bathrooms, and a 2 Car Garage.  Main Floor boasts a Master Bedroom with Corner Jetted Tub and a Mud Room. In the Basement, you’ll find a Theater Room and Wet Bar.

Plan Information

Main Floor Square Feet
1429
Basement Square Feet
1429
Garage Square Feet
475
Main Floor Wall Height
10'- 0"
Basement Wall Height
8'- 0"
Foundation Type
Basement
Primary Roof Pitch
7/12
Base Price - PDF - Single Build
$525.00
PDF - 5 Sets Printed - Single Build
$575.00
CAD File - Unlimited Build
$1,575.00

Special Features

  • Breakfast Nook
  • Narrow Lot Fit
  • Theater Room

Interested in this plan?

Purchase this plan as is or request modifications. Add your notes to the popout form with the link below or give us a call to discuss your plan.