Skip to the content

Plan #

1-1514

Base Price

$525.00

Single Family Home

  • Total Sq. Ft.

    3085
    1 Story
  • Beds

    5
    2 on main floor
  • Baths

    3
  • Bays

    2
  • Width

    55'- 7'
  • Depth

    54'- 10"

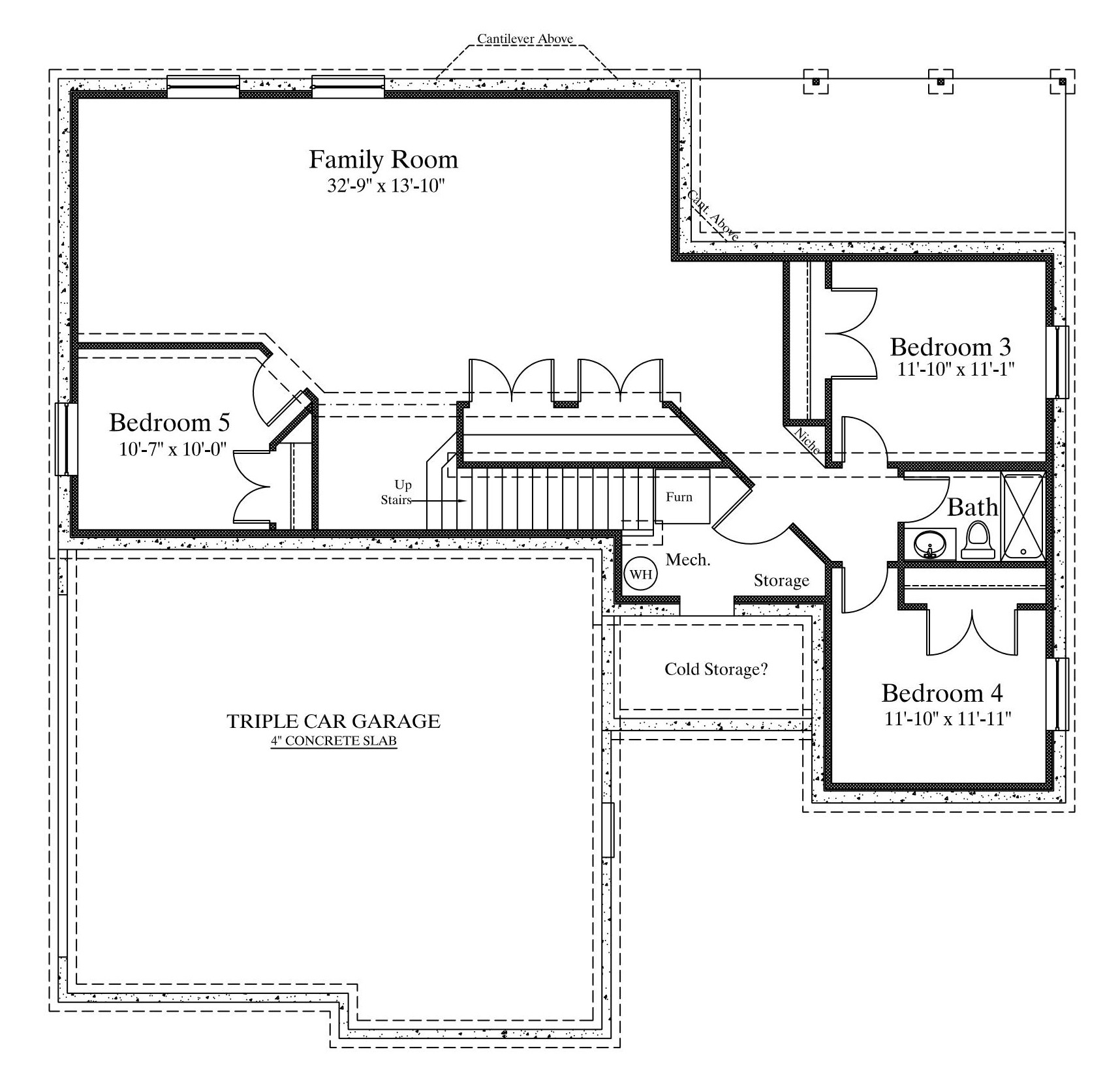
Single Story House Plan with Basement – 1514 Square Feet on Main Floor  ---  Striking Single Story House Plan with over 3000 Sq. Ft. when finished. Find Five (5) Bedrooms and Three (3) Bathrooms. Main floor boasts a Secluded Master Suite, Pantry, Mud Room, and Covered Deck/Patio. Basement includes Three (3) Bedrooms, Family Room, and Cold Storage.

Plan Information

Main Floor Square Feet
1514
Basement Square Feet
1498
Garage Square Feet
787
Main Floor Wall Height
8'
Basement Wall Height
9'
Foundation Type
Basement
Primary Roof Pitch
6/12
Base Price - PDF - Single Build
$525.00
PDF - 5 Sets Printed - Single Build
$575.00
CAD File - Unlimited Build
$1,575.00

Special Features

  • Secluded Master Bedroom
  • Rear Deck
  • Covered Porch
  • Side Load Garage
  • Cold Storage
  • Breakfast Nook
  • Walk In Pantry

Interested in this plan?

Purchase this plan as is or request modifications. Add your notes to the popout form with the link below or give us a call to discuss your plan.