Skip to the content

Plan #

1-1521

Base Price

$525.00

Single Family Home

  • Total Sq. Ft.

    3042
    1 Story
  • Beds

    5
    3 on main floor
  • Baths

    3
  • Bays

    2
  • Width

    74'
  • Depth

    36'

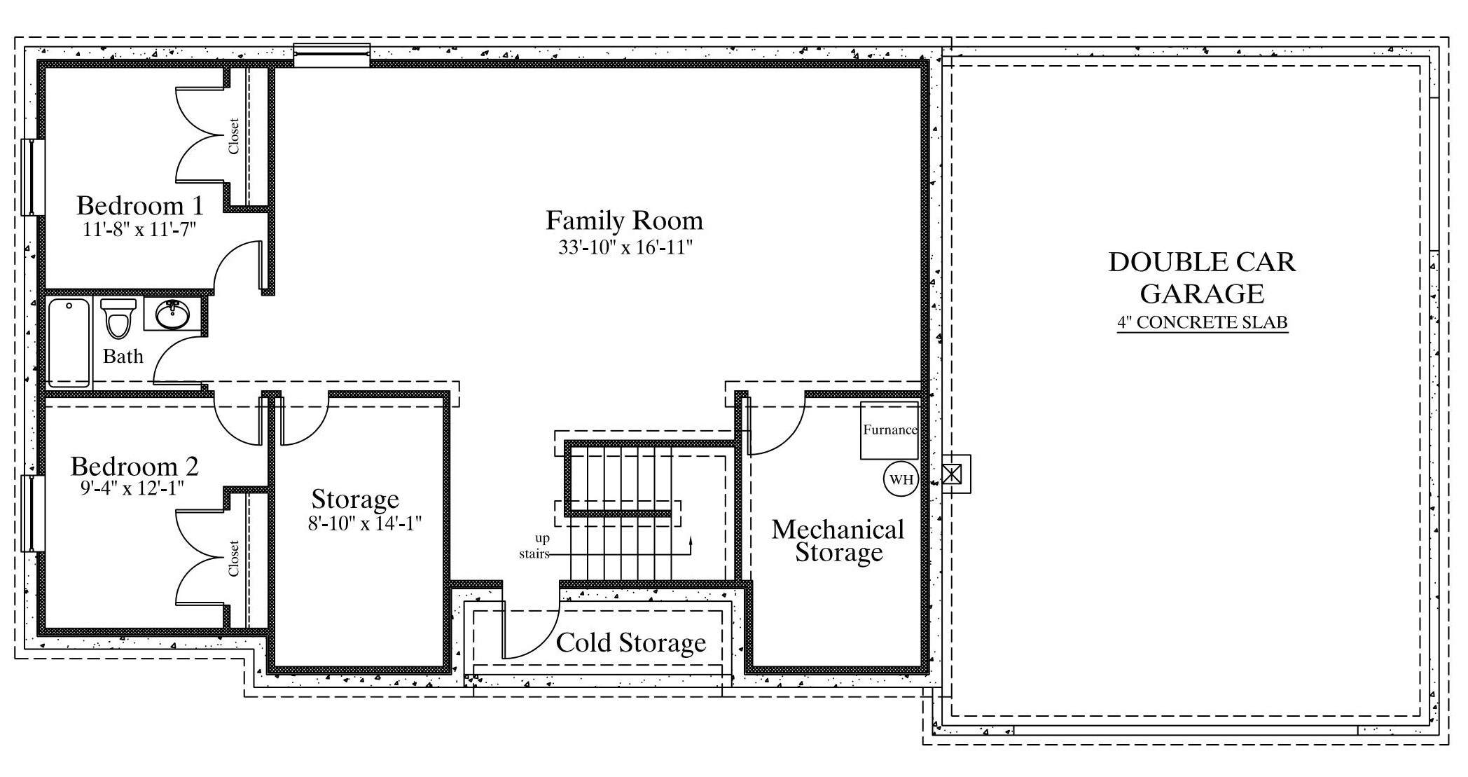
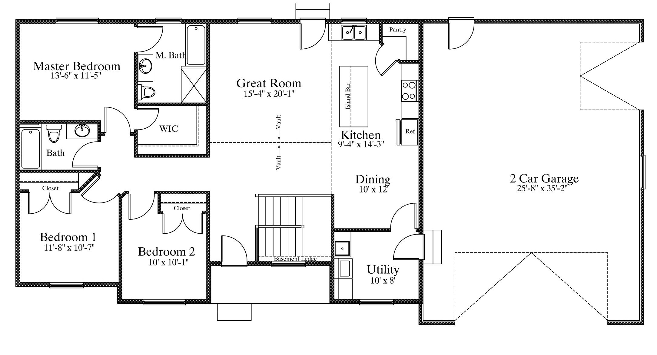
Single Story House Plan with Basement – 1521 Square Feet on Main Floor  ---  Wonderful Single Story Family House Plan boasting more than 3000 Sq. Ft. when complete! Plan includes Five (5) Bedrooms and Three (3) Bathrooms overall. On the Main Floor, find a nice Pantry, Mud Room, Covered Porch, and 2 Car Garage. Basement includes Two Bedrooms, Storage Room, and Cold Storage.

Plan Information

Main Floor Square Feet
1521
Basement Square Feet
1521
Garage Square Feet
937
Main Floor Wall Height
8'
Basement Wall Height
8'
Foundation Type
Basement
Primary Roof Pitch
6/12
Base Price - PDF - Single Build
$525.00
PDF - 5 Sets Printed - Single Build
$575
CAD File - Unlimited Build
$1575

Special Features

  • Cold Storage

Interested in this plan?

Purchase this plan as is or request modifications. Add your notes to the popout form with the link below or give us a call to discuss your plan.