Plan #
1-1533
Base Price
$525.00
Single Family Home
- 
                        Total Sq. Ft. 30561 Story
- 
                        Beds 53 on main floor
- 
                        Baths 4
- 
                        Bays 2
- 
                        Width 55'- 10"
- 
                        Depth 51'- 8"
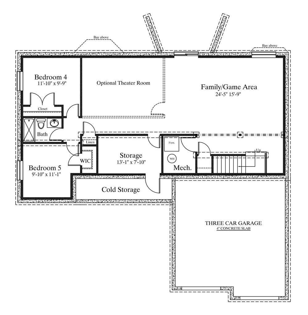
Single Story House Plan – 1533 Sq. Ft. on the Main Floor --- Stunning Single Story House boasting over 3000 Square Feet when completed. Find Five (5) Bedrooms, Four (4) Bathrooms, and 2 Car Garage. Main Floor includes a Pantry, Secluded Master Suite, and Covered Porch. There's room for Two (2) Bedrooms, Theater Room, Family Room, and a Cold Storage in the Basement.
Plan Information
                                Main Floor Square Feet
                            
                            
                                1533
                            
                        
                                Basement Square Feet
                            
                            
                                1523
                            
                        
                                Garage Square Feet
                            
                            
                                576
                            
                        
                                Main Floor Wall Height
                            
                            
                                8'
                            
                        
                                Basement Wall Height
                            
                            
                                8'
                            
                        
                                Foundation Type
                            
                            
                                Basement
                            
                        
                                Primary Roof Pitch
                            
                            
                                8/12
                            
                        
                                Base Price - PDF - Single Build
                            
                            
                                $525.00
                            
                        
                                PDF - 5 Sets Printed - Single Build
                            
                            
                                $575.00
                            
                        
                                CAD File - Unlimited Build
                            
                            
                                $1,575.00
                            
                        Special Features
- Secluded Master Bedroom
- Rear Deck
- Covered Porch
- Cold Storage
- Theater Room
Interested in this plan?
Purchase this plan as is or request modifications. Add your notes to the popout form with the link below or give us a call to discuss your plan.
 
                         
                         
                         
                         
                         
                         
                        