Skip to the content

Plan #

1-1639

Base Price

$625.00

Single Family Home

  • Total Sq. Ft.

    3257
    1 Story
  • Beds

    5
    3 on main floor
  • Baths

    3
  • Bays

    2
  • Width

    53'- 6'
  • Depth

    63'

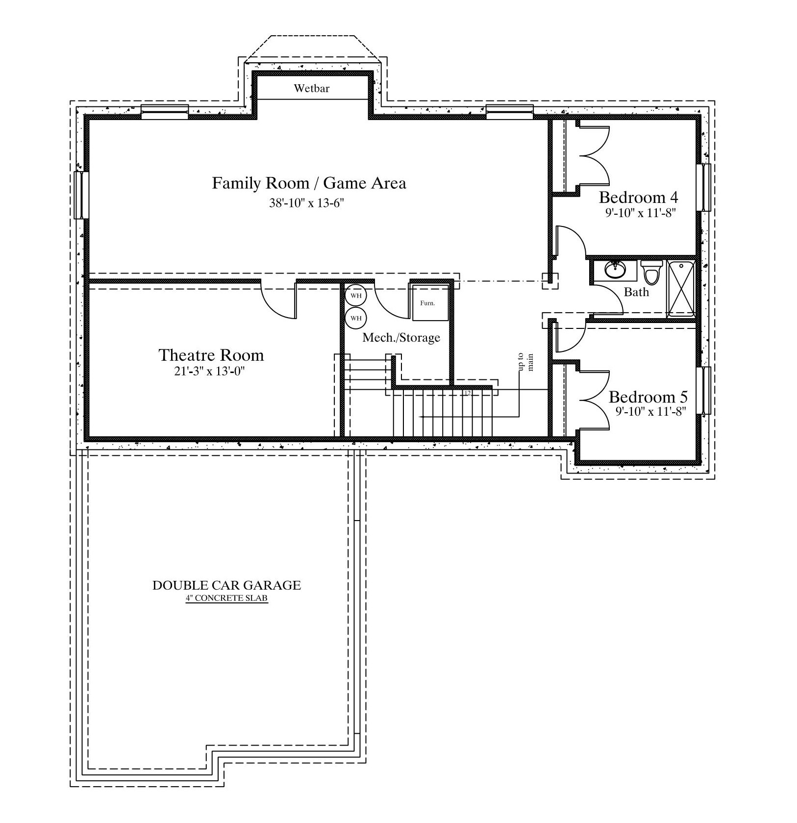
Single Story House Plan with Basement – 1639 Square Feet on Main Floor --- Stellar Single Story Family House Plan with over 3200 Sq. Ft. Plan has Five (5) Bedrooms, Three (3) Bathrooms, and a 2 Car Garage.  Main Floor boasts a Secluded Master Suite, Mud Room, Covered Porch, and Fireplace. Basement includes a Theater Room and Wet Bar.  Plan may be Designed to fit your needs - Call today!

Plan Information

Main Floor Square Feet
1639
Basement Square Feet
1618
Bonus Room Square Feet
785
Garage Square Feet
648
Main Floor Wall Height
9'
Basement Wall Height
8'
Foundation Type
Basement
Primary Roof Pitch
10/12
Base Price - PDF - Single Build
$625.00
PDF - 5 Sets Printed - Single Build
$675.00
CAD File - Unlimited Build
$2,025.00

Special Features

  • Secluded Master Bedroom
  • Bonus Room
  • Covered Porch
  • Side Load Garage
  • Breakfast Nook
  • Narrow Lot Fit
  • Theater Room
  • Jack N Jill Bathroom

Interested in this plan?

Purchase this plan as is or request modifications. Add your notes to the popout form with the link below or give us a call to discuss your plan.