Skip to the content

Plan #

1-1660

Base Price

$625

Single Family Home

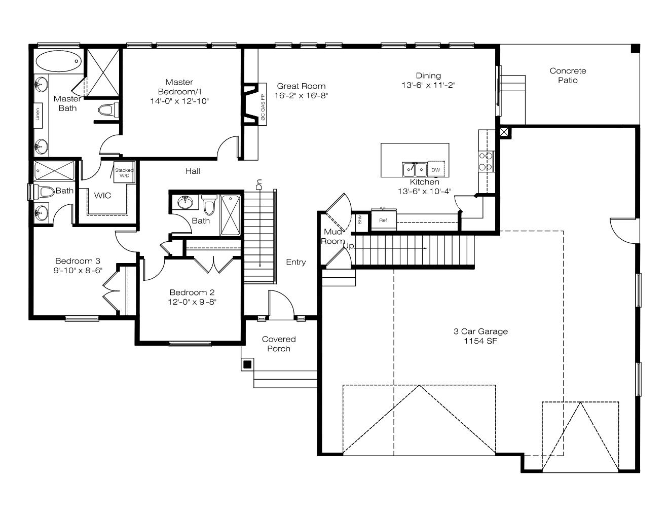
  • Total Sq. Ft.

    3754
    1 Story
  • Beds

    5
    3 on main floor
  • Baths

    4
  • Bays

    2
  • Width

    72'
  • Depth

    50'-6"

Plan Information

Main Floor Square Feet
1660
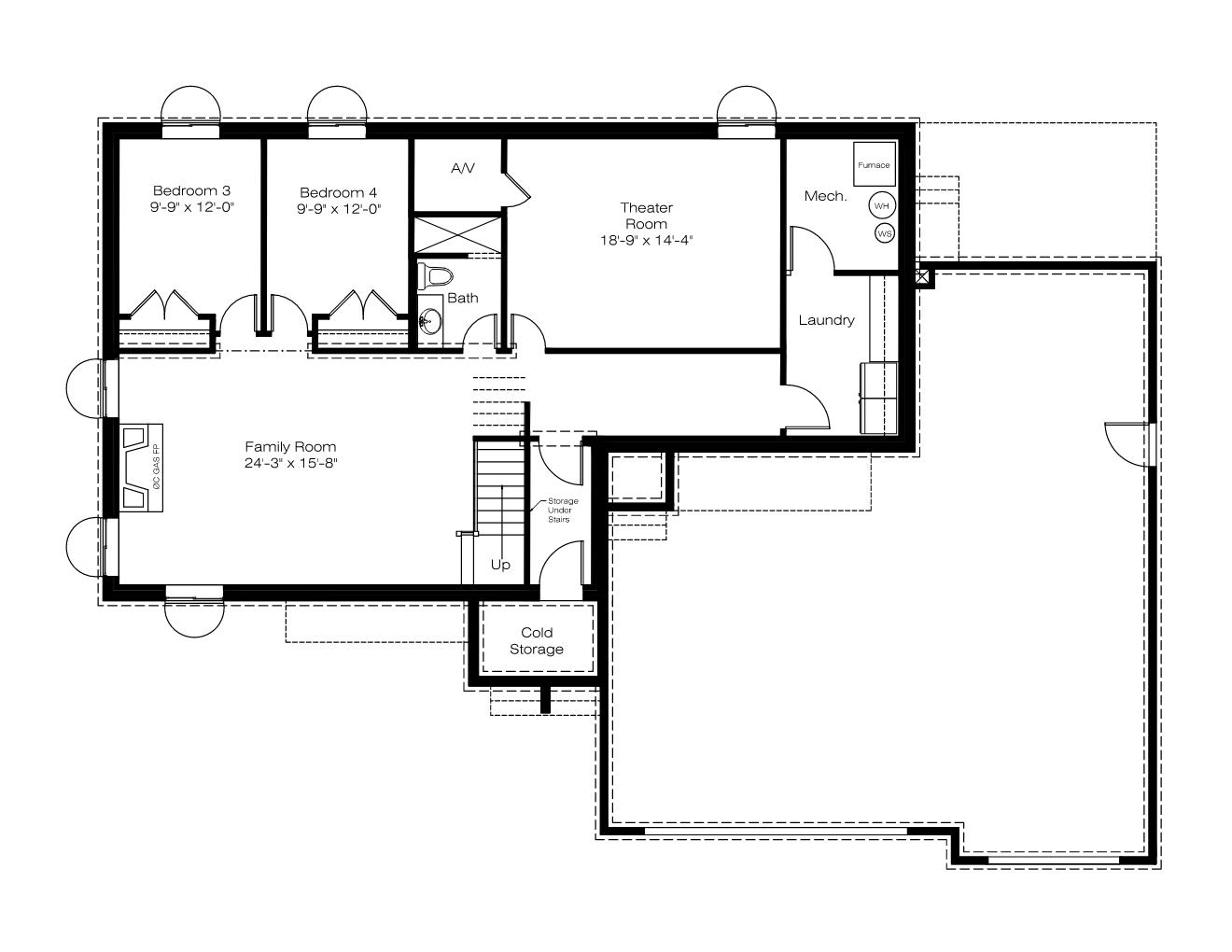
Basement Square Feet
1599
Bonus Room Square Feet
495
Garage Square Feet
1154
Main Floor Wall Height
9'
Basement Wall Height
9'
Foundation Type
Basement
Primary Roof Pitch
8/12
Base Price - PDF - Single Build
$625
PDF - 5 Sets Printed - Single Build
$675
CAD File - Unlimited Build
$2025

Special Features

  • Bonus Room
  • Covered Porch
  • Cold Storage
  • Walk In Pantry
  • Theater Room

Interested in this plan?

Purchase this plan as is or request modifications. Add your notes to the popout form with the link below or give us a call to discuss your plan.