Skip to the content

Plan #

1-1665

Base Price

$625.00

Single Family Home

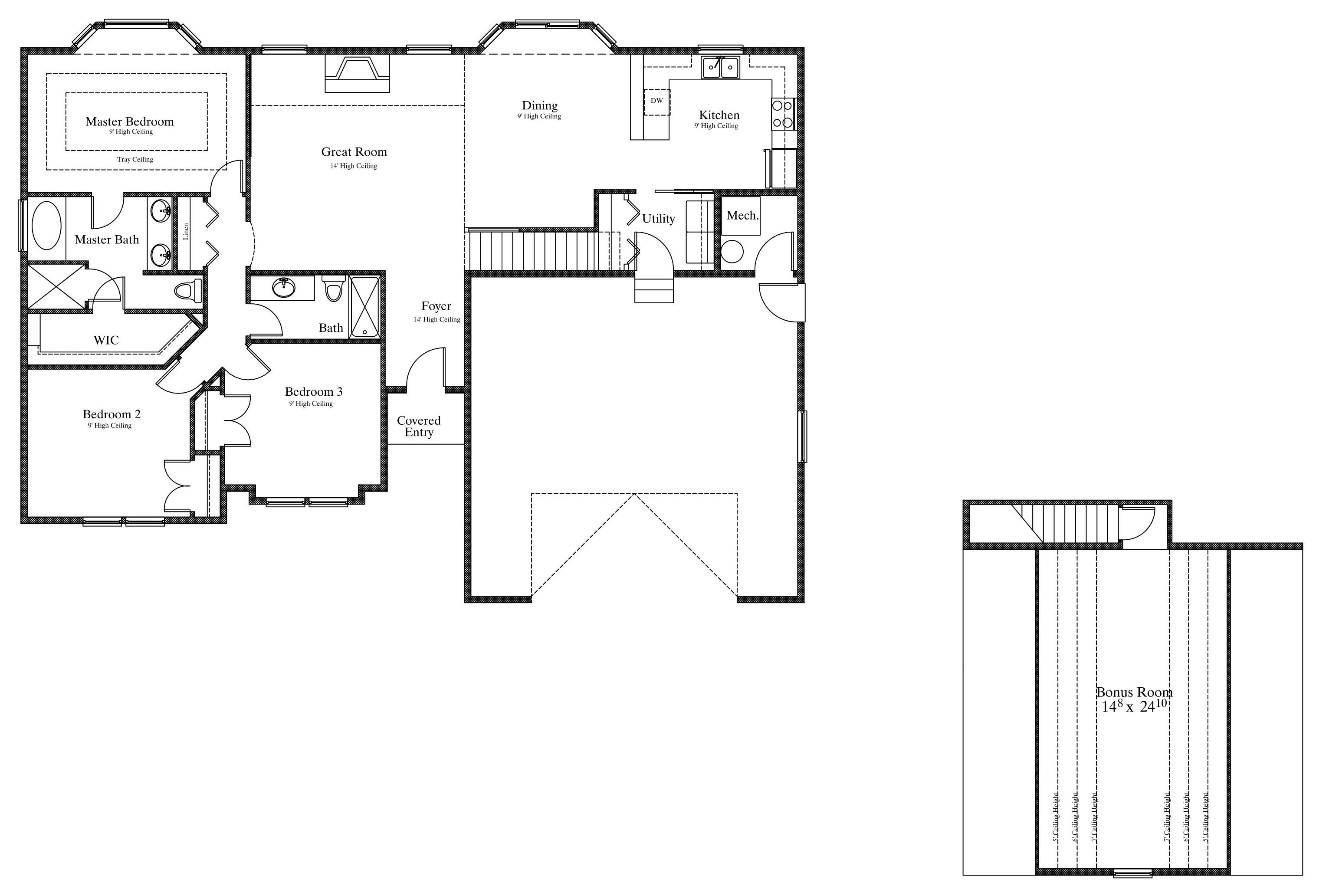
  • Total Sq. Ft.

    2049
    1 Story
  • Beds

    3
    3 on main floor
  • Baths

    2
  • Bays

    2
  • Width

    60'- 11"
  • Depth

    45'- 2"

Single Story House Plan with Crawl Space – 1664 Square Feet  ---  Great Single Story Family House Plan with a Crawl Space with 1934 Sq. Ft. with finished.  Find 3 Bedrooms and  2 Bathrooms, overall.  Main Floor includes a Covered Front Porch, Secluded Master Suite, Mud Room, Corner Jetted Tub, and a 2 Car Garage.  Enjoy a nice Bonus Room upstairs.  Basement Plan may be Designed to fit your needs - Call today!

Plan Information

Main Floor Square Feet
1665
Bonus Room Square Feet
384
Garage Square Feet
726
Main Floor Wall Height
9'
Foundation Type
Crawl Space
Primary Roof Pitch
8/12
Base Price - PDF - Single Build
$625.00
PDF - 5 Sets Printed - Single Build
$675.00
CAD File - Unlimited Build
$2,025.00

Special Features

  • Bonus Room
  • Covered Porch
  • Breakfast Nook

Interested in this plan?

Purchase this plan as is or request modifications. Add your notes to the popout form with the link below or give us a call to discuss your plan.