Plan #
1-1686
Base Price
$625.00
Single Family Home
- 
                        
Total Sq. Ft.
33561 Story - 
                        
Beds
63 on main floor - 
                        
Baths
3 - 
                        
Bays
3 - 
                        
Width
72' - 
                        
Depth
52'- 8' 
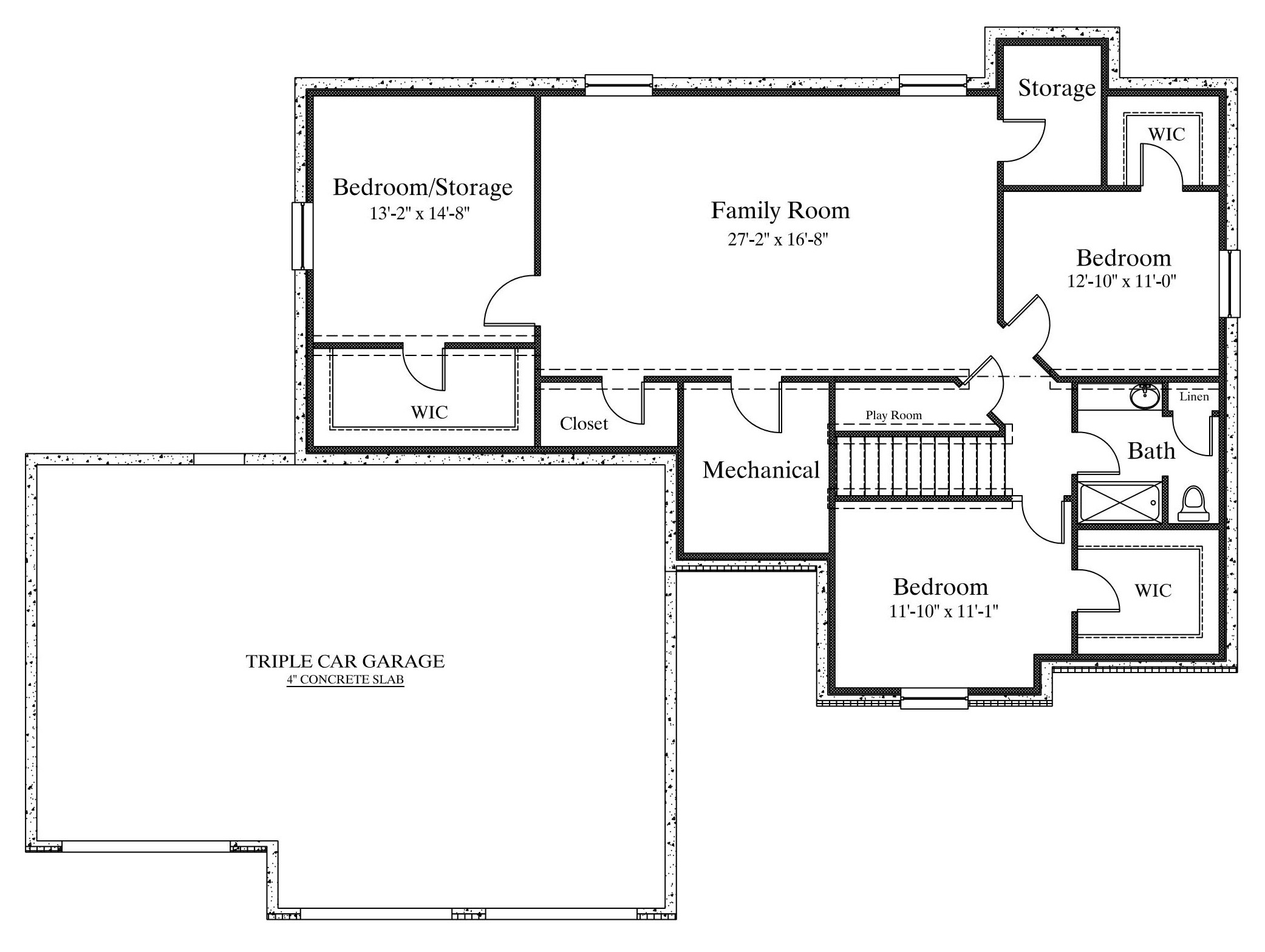
Single Story House Plan with Basement – 1686 Square Feet on Main Floor --- Spectacular Single Story Family House Plan with over 3300 Sq. Ft. when completed. Plan includes Six (6) Bedrooms, Three (3) Bathrooms, and a 3 Car Garage. Find a nice Pantry, Mud Room, Play Room, and Bonus Room on the Main Floor. Basement includes up to Three (3) Bedrooms, Storage Room, and a Family Room. Plan may be Designed to fit your needs - Call today!
Plan Information
                                Main Floor Square Feet
                            
                            
                                1686
                            
                        
                                Basement Square Feet
                            
                            
                                1670
                            
                        
                                Bonus Room Square Feet
                            
                            
                                364
                            
                        
                                Garage Square Feet
                            
                            
                                980
                            
                        
                                Main Floor Wall Height
                            
                            
                                9'
                            
                        
                                Basement Wall Height
                            
                            
                                9'
                            
                        
                                Foundation Type
                            
                            
                                Basement
                            
                        
                                Primary Roof Pitch
                            
                            
                                8/12
                            
                        
                                Base Price - PDF - Single Build
                            
                            
                                $625.00
                            
                        
                                PDF - 5 Sets Printed - Single Build
                            
                            
                                $675.00
                            
                        
                                CAD File - Unlimited Build
                            
                            
                                $2,025.00
                            
                        Special Features
- Bonus Room
 - Covered Porch
 - Play Room Under Stairs
 
Interested in this plan?
Purchase this plan as is or request modifications. Add your notes to the popout form with the link below or give us a call to discuss your plan.