Plan #
1-1743
Base Price
$625
Single Family Home
- 
                        Total Sq. Ft. 34861 Story
- 
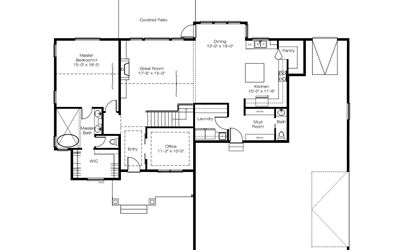
                        Beds 41 on main floor
- 
                        Baths 2-1/2
- 
                        Bays 2
- 
                        Width 71'
- 
                        Depth 58'
Plan Information
                                Main Floor Square Feet
                            
                            
                                1743
                            
                        
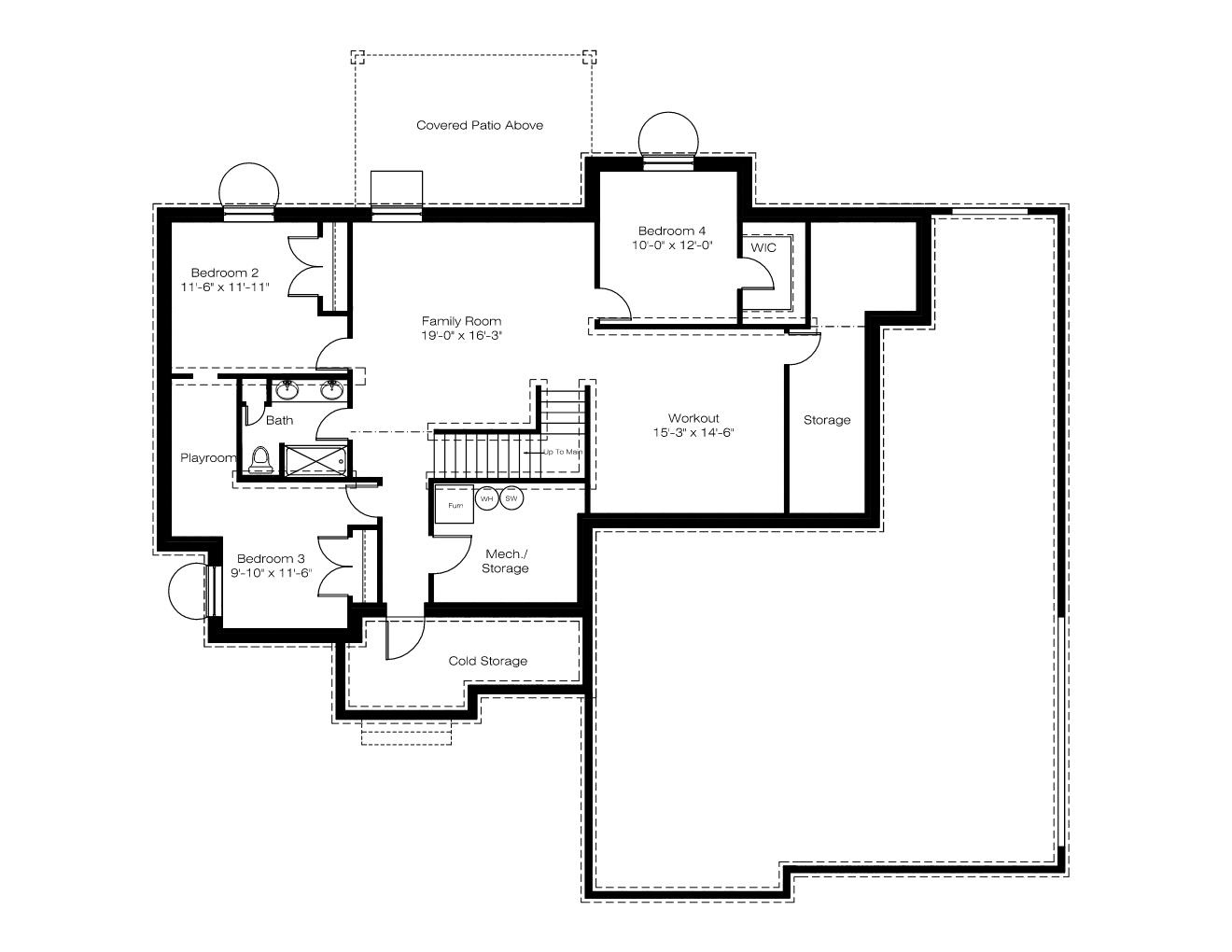
                                Basement Square Feet
                            
                            
                                1743
                            
                        
                                Garage Square Feet
                            
                            
                                1367
                            
                        
                                Main Floor Wall Height
                            
                            
                                9'
                            
                        
                                Basement Wall Height
                            
                            
                                9'
                            
                        
                                Foundation Type
                            
                            
                                Basement
                            
                        
                                Primary Roof Pitch
                            
                            
                                7/12
                            
                        
                                Base Price - PDF - Single Build
                            
                            
                                $625
                            
                        
                                PDF - 5 Sets Printed - Single Build
                            
                            
                                $635
                            
                        
                                CAD File - Unlimited Build
                            
                            
                                $2025
                            
                        Special Features
- Secluded Master Bedroom
- Side Load Garage
- Cold Storage
- Walk In Pantry
Interested in this plan?
Purchase this plan as is or request modifications. Add your notes to the popout form with the link below or give us a call to discuss your plan.
 
                         
                         
                         
                         
                         
                         
                        