Skip to the content

Plan #

1-1811

Base Price

$695.00

Single Family Home

  • Total Sq. Ft.

    3594
    1 Story
  • Beds

    5
    3 on main floor
  • Baths

    3
  • Bays

    3
  • Width

    63'- 6"
  • Depth

    56'- 10"

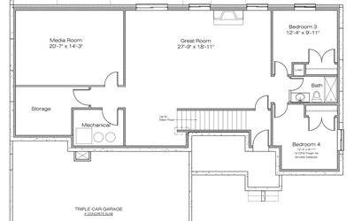
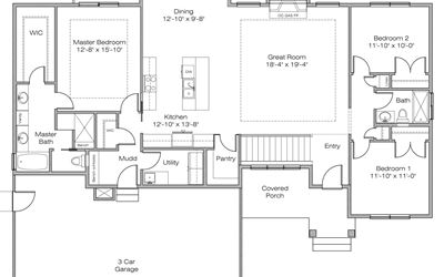
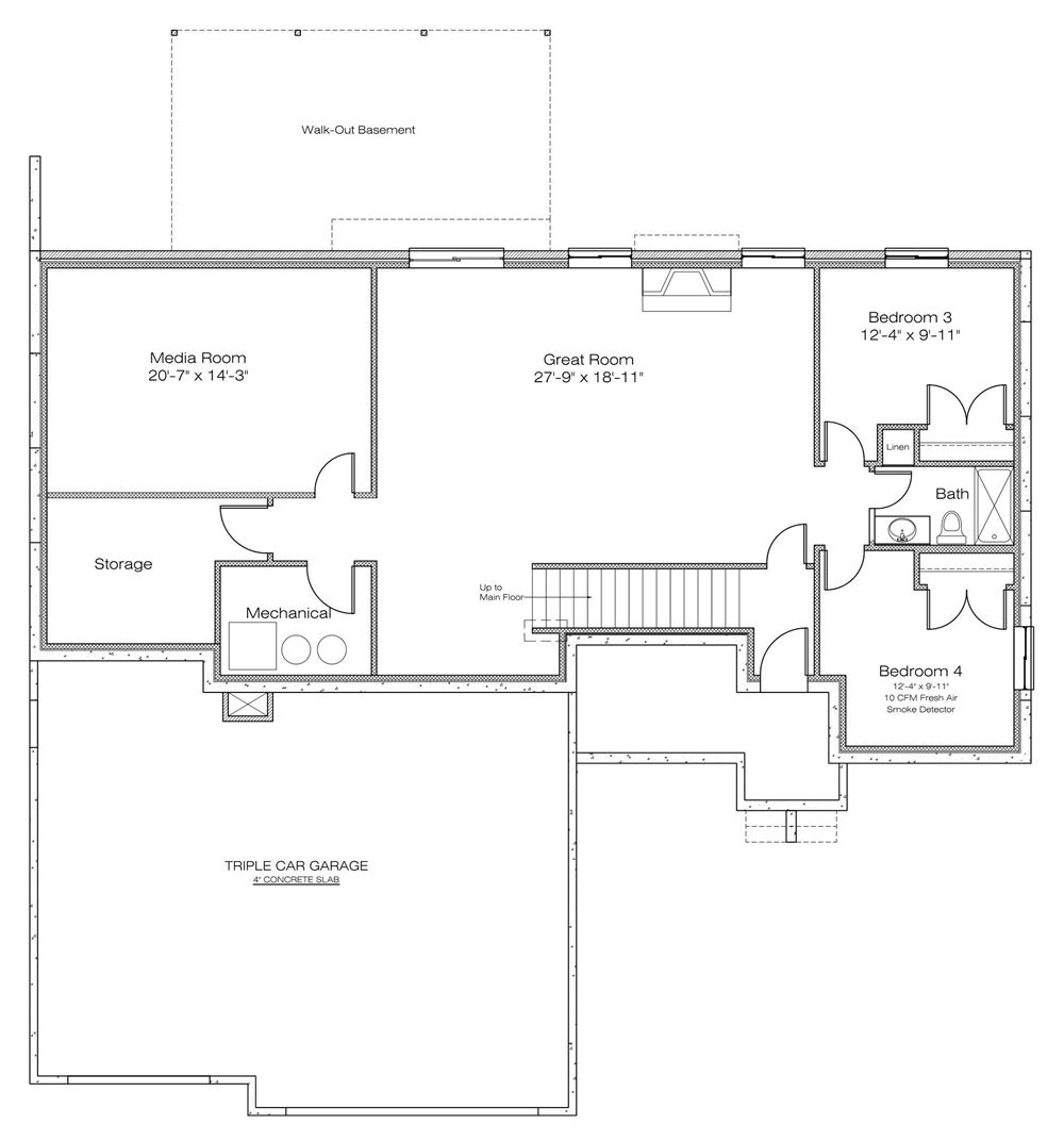
Single Story House Plan with Walk-out Basement – 1811 Square Feet on Main Floor  ---  Sensational Single Story Family House Plan boasting over 3500 Sq. Ft. with finished.  Find Five (5) Bedrooms and Three (3) Bathrooms, overall.  Main Floor includes an Pantry, Covered Front Porch, Mud Room, and a Secluded Master Suite. Plan may be Designed to fit your needs - Call today!

Plan Information

Main Floor Square Feet
1811
Basement Square Feet
1783
Garage Square Feet
925
Main Floor Wall Height
9'- 0"
Basement Wall Height
8'- 0"
Foundation Type
Walkout Basement
Primary Roof Pitch
8/12
Base Price - PDF - Single Build
$695.00
PDF - 5 Sets Printed - Single Build
$745.00
CAD File - Unlimited Build
$2,085.00

Special Features

  • Secluded Master Bedroom
  • Rear Deck
  • Covered Porch
  • Walk In Pantry
  • Theater Room

Interested in this plan?

Purchase this plan as is or request modifications. Add your notes to the popout form with the link below or give us a call to discuss your plan.