Skip to the content

Plan #

1-1814

Base Price

$695

Single Family Home

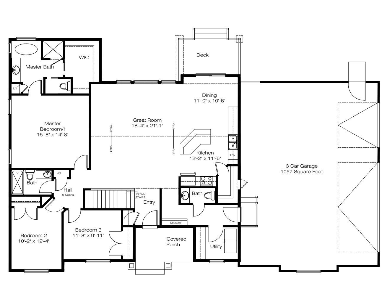
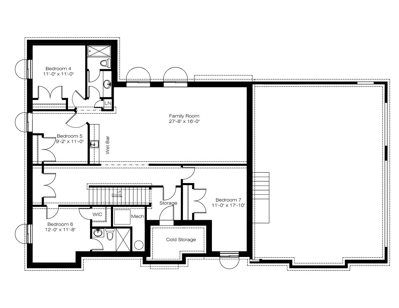
  • Total Sq. Ft.

    3621
    1 Story
  • Beds

    6
    3 on main floor
  • Baths

    4-1/2
  • Bays

    2
  • Width

    74'-8"
  • Depth

    47'

Plan Information

Main Floor Square Feet
1814
Basement Square Feet
1807
Garage Square Feet
1057
Main Floor Wall Height
9'
Basement Wall Height
9'
Foundation Type
Basement
Primary Roof Pitch
6/12
Base Price - PDF - Single Build
$695
PDF - 5 Sets Printed - Single Build
$745
CAD File - Unlimited Build
$2085

Special Features

  • Rear Deck
  • Covered Porch
  • Side Load Garage
  • Cold Storage
  • Walk In Pantry

Interested in this plan?

Purchase this plan as is or request modifications. Add your notes to the popout form with the link below or give us a call to discuss your plan.