Skip to the content

Plan #

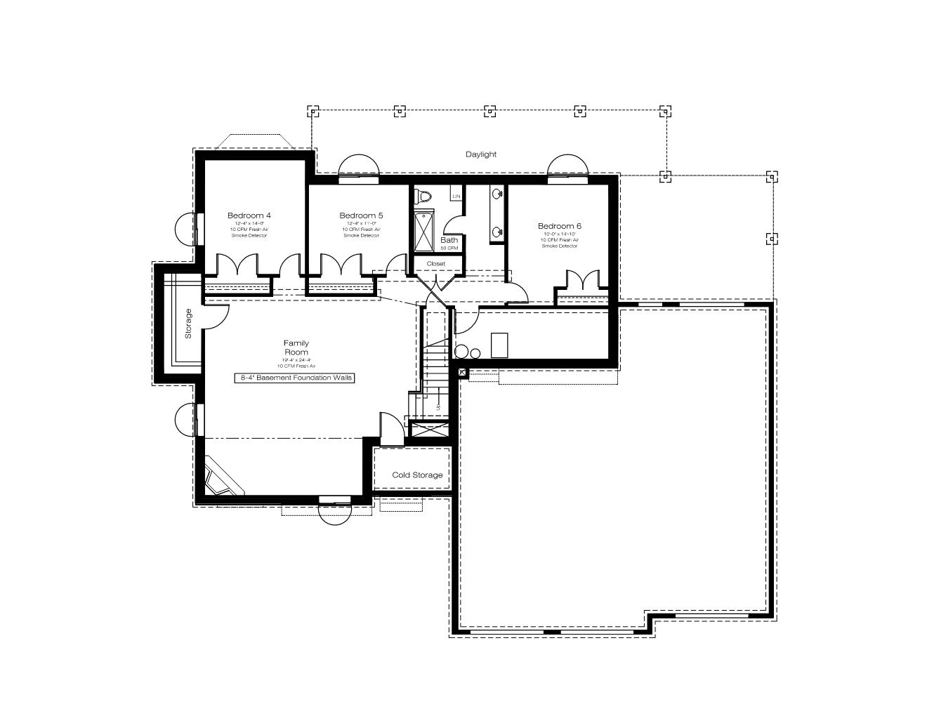
1-1845

Base Price

$695

Single Family Home

  • Total Sq. Ft.

    3629
    1 Story
  • Beds

    6
    3 on main floor
  • Baths

    3
  • Bays

    3
  • Width

    75'-6"
  • Depth

    60'

Plan Information

Main Floor Square Feet
1845
Basement Square Feet
1784
Garage Square Feet
1350
Main Floor Wall Height
8'
Basement Wall Height
8'-4"
Foundation Type
Daylight Basement
Primary Roof Pitch
8/12
Base Price - PDF - Single Build
$695
PDF - 5 Sets Printed - Single Build
$745
CAD File - Unlimited Build
$2085

Special Features

  • Secluded Master Bedroom
  • Rear Deck
  • Cold Storage
  • Walk In Pantry

Interested in this plan?

Purchase this plan as is or request modifications. Add your notes to the popout form with the link below or give us a call to discuss your plan.