Skip to the content

Plan #

1-1848

Base Price

$625

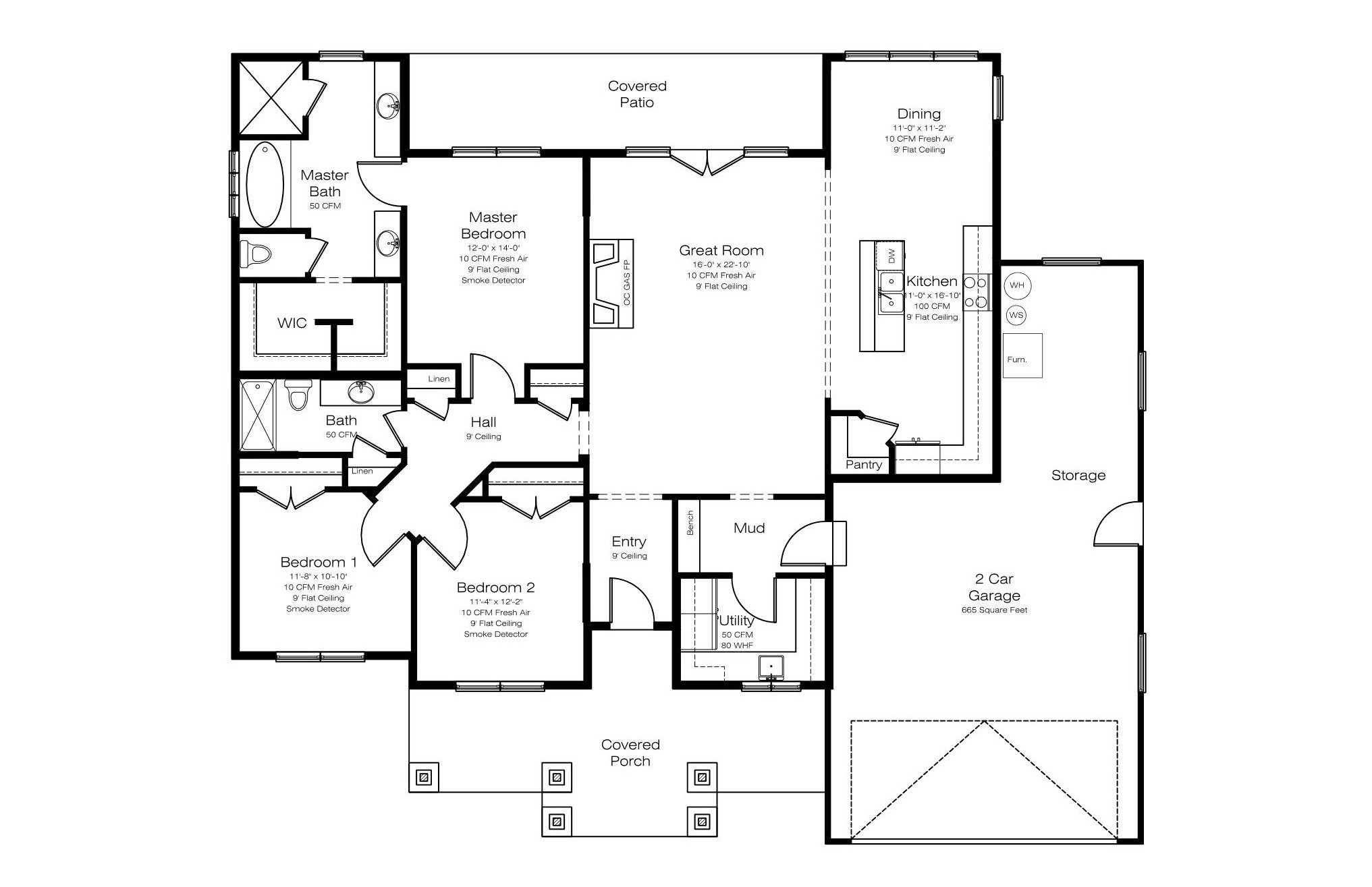
Single Family Home

  • Total Sq. Ft.

    1848
    1 Story
  • Beds

    3
    3 on main floor
  • Baths

    2
  • Bays

    2
  • Width

    61'- 8"
  • Depth

    53'- 6"

Plan Information

Main Floor Square Feet
1848
Garage Square Feet
665
Main Floor Wall Height
9'- 0"
Foundation Type
Crawl Space
Crawl Space Square Feet
1848
Primary Roof Pitch
6/12
Base Price - PDF - Single Build
$625
PDF - 5 Sets Printed - Single Build
$675
CAD File - Unlimited Build
$2025

Special Features

  • Secluded Master Bedroom
  • Rear Deck
  • Covered Porch
  • Breakfast Nook

Interested in this plan?

Purchase this plan as is or request modifications. Add your notes to the popout form with the link below or give us a call to discuss your plan.