Skip to the content

Plan #

1-1849

Base Price

$695

Single Family Home

  • Total Sq. Ft.

    3650
    1 Story
  • Beds

    5
    3 on main floor
  • Baths

    3
  • Bays

    2
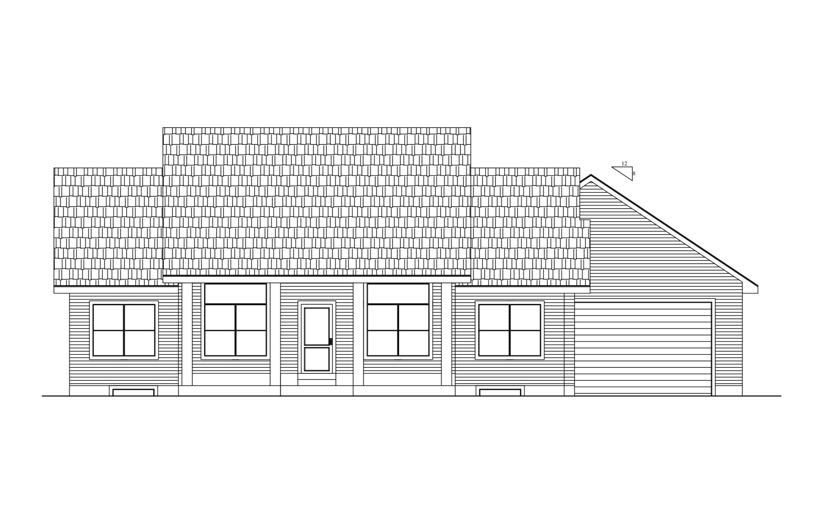
  • Width

    64'- 10"
  • Depth

    47'- 7"

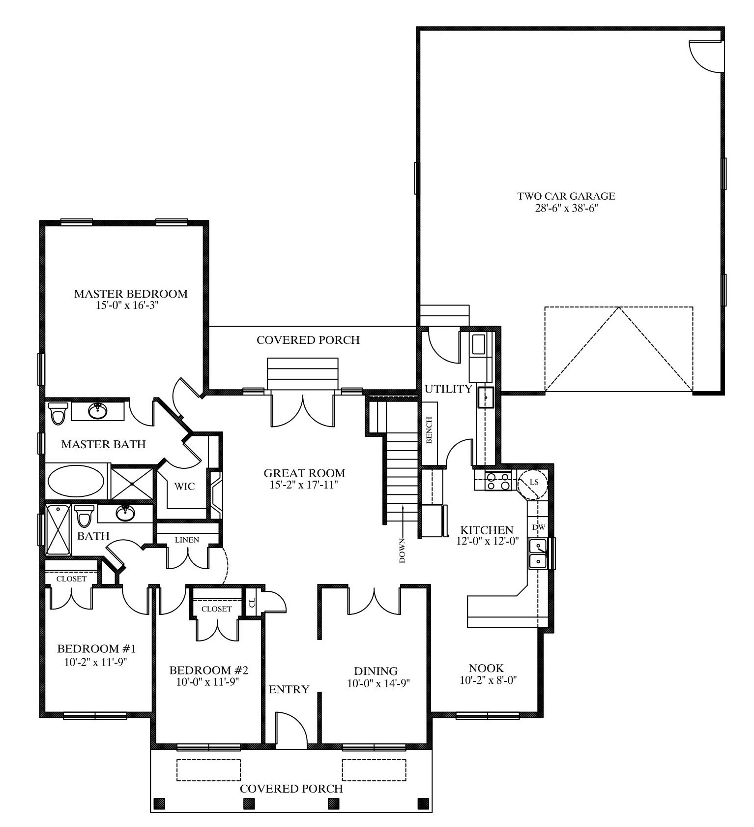
Single Story House Plan with Basement – 1849 Square Feet on Main Floor --- Remarkable Single Story Family House Plan with over 3600 Sq. Ft. when completed. Plan includes Five (5) Bedrooms, Three (3) Bathrooms, and a 2 Car Garage. Enjoy a Fireplace, Covered Porch, and Covered Patio on the Main Floor. Basement area includes a large Family Room, Two (2) Bedrooms, an Office, and an Exercise Room.  Plan may be Altered/Designed to fit your needs - Call today!

Plan Information

Main Floor Square Feet
1849
Basement Square Feet
1801
Garage Square Feet
963
Main Floor Wall Height
9'- 0"
Basement Wall Height
9'- 0"
Foundation Type
Basement
Primary Roof Pitch
8/12
Base Price - PDF - Single Build
$695
PDF - 5 Sets Printed - Single Build
$745
CAD File - Unlimited Build
$2,085

Special Features

  • Rear Deck
  • Covered Porch
  • Breakfast Nook

Interested in this plan?

Purchase this plan as is or request modifications. Add your notes to the popout form with the link below or give us a call to discuss your plan.