Skip to the content

Plan #

1-1870

Base Price

$625

Single Family Home

  • Total Sq. Ft.

    3808
    1 Story
  • Beds

    5
    2 on main floor
  • Baths

    3
  • Bays

    3
  • Width

    73'- 2'
  • Depth

    57'- 9"

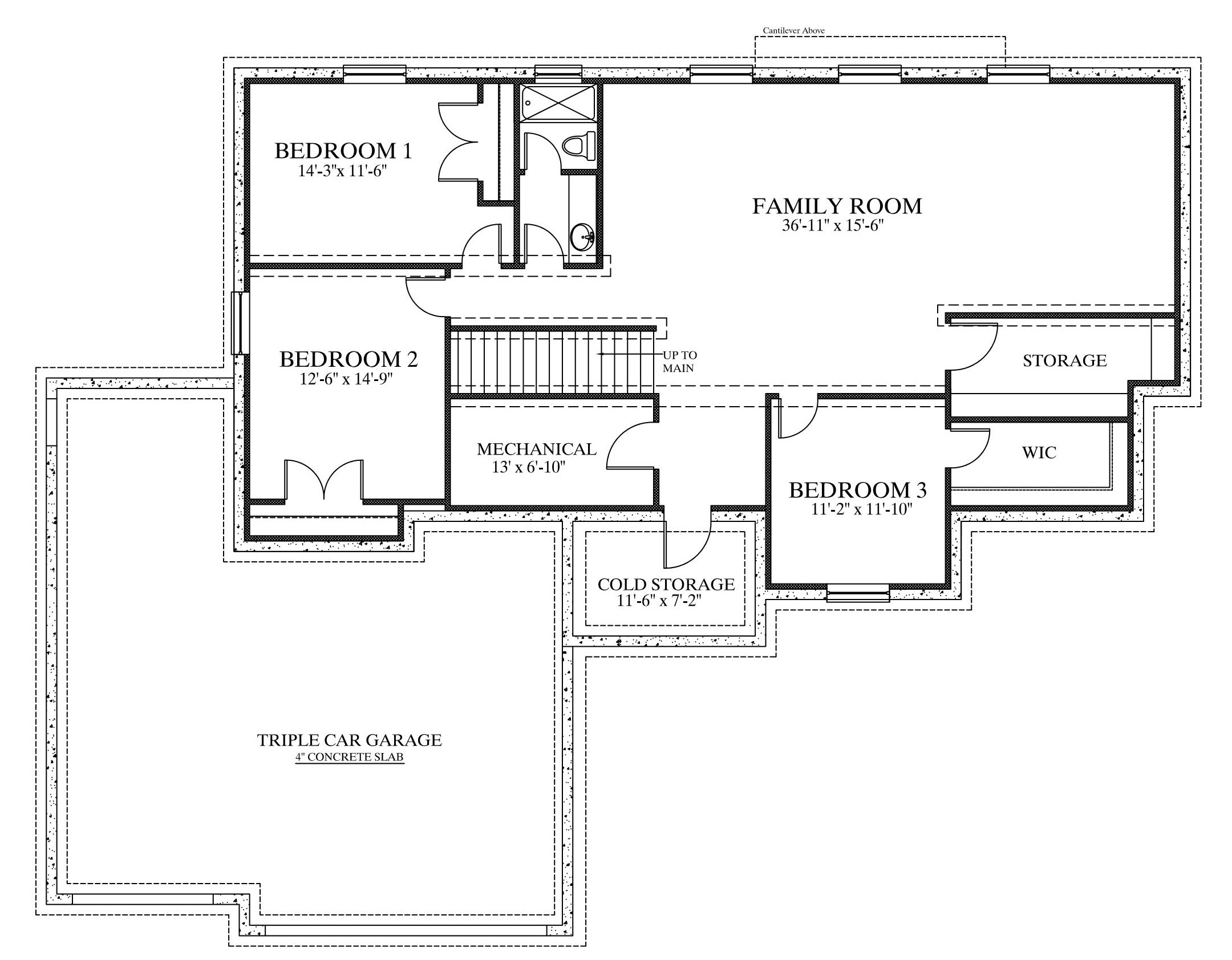
Single Story House Plan with Basement – 1870 Square Feet on Main Floor --- Wonderful Single Story Family House Plan boasting over 3500 Sq. Ft. Plan includes Five (5) Bedrooms, Three (3) Bathrooms, and a 3 Car Garage. Find a nice Pantry, Mud Room, Covered Porch, Covered Deck, Office/Den, and Fireplace on the Main Floor. Basement includes Three (3) Bedrooms, Cold Storage, and a large Family Room.  Plan may be Designed to fit your needs - Call today!

Plan Information

Main Floor Square Feet
1870
Basement Square Feet
1938
Garage Square Feet
972
Main Floor Wall Height
9'
Basement Wall Height
9'
Foundation Type
Basement
Primary Roof Pitch
8/12
Base Price - PDF - Single Build
$625
PDF - 5 Sets Printed - Single Build
$675
CAD File - Unlimited Build
$2,025

Special Features

  • Rear Deck
  • Covered Porch
  • Cold Storage
  • Walk In Pantry

Interested in this plan?

Purchase this plan as is or request modifications. Add your notes to the popout form with the link below or give us a call to discuss your plan.