Skip to the content

Plan #

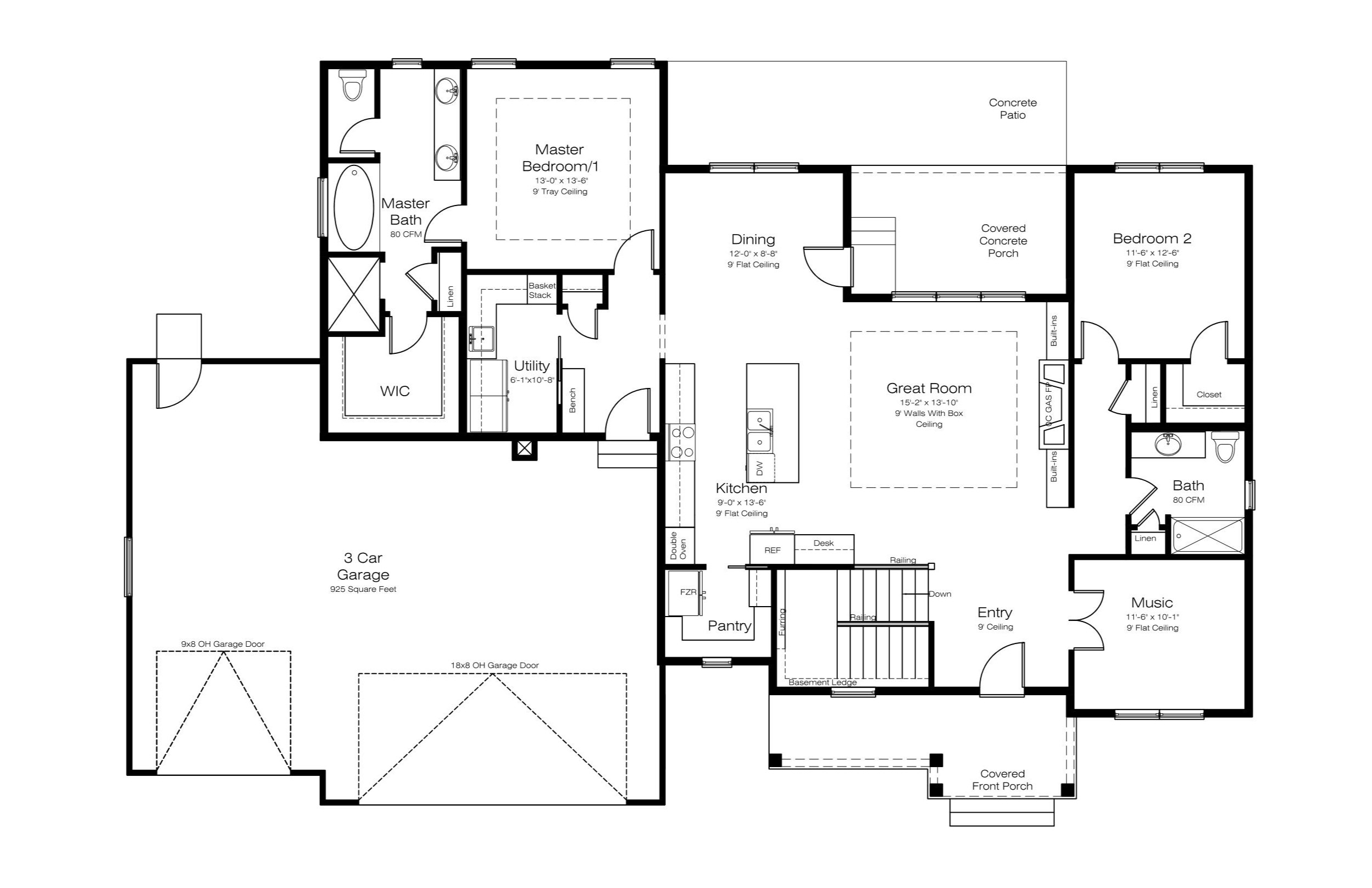
1-1884

Base Price

$625

Single Family Home

  • Total Sq. Ft.

    3775
    1 Story
  • Beds

    5
    2 on main floor
  • Baths

    3
  • Bays

    3
  • Width

    75'- 8"
  • Depth

    50'- 0"

Plan Information

Main Floor Square Feet
1884
Basement Square Feet
1891
Garage Square Feet
930
Main Floor Wall Height
9'- 0"
Basement Wall Height
8'- 0"
Foundation Type
Basement
Primary Roof Pitch
7/12
Base Price - PDF - Single Build
$625
PDF - 5 Sets Printed - Single Build
$675
CAD File - Unlimited Build
$2025

Special Features

  • Secluded Master Bedroom
  • Rear Deck
  • Covered Porch
  • Walk In Pantry

Interested in this plan?

Purchase this plan as is or request modifications. Add your notes to the popout form with the link below or give us a call to discuss your plan.