Skip to the content

Plan #

1-1888

Base Price

$625

Single Family Home

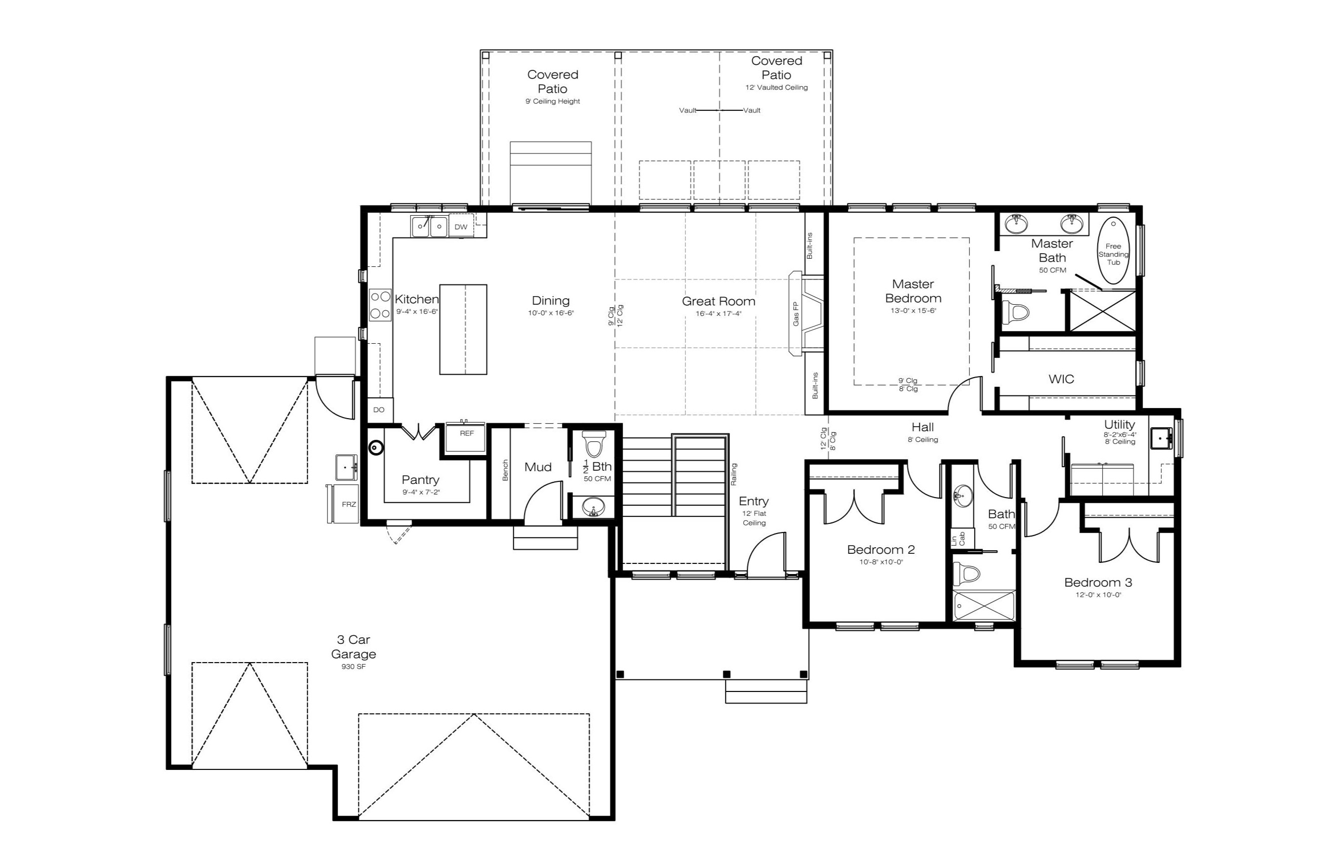
  • Total Sq. Ft.

    3806
    1 Story
  • Beds

    5
    3 on main floor
  • Baths

    4
  • Bays

    4
  • Width

    79'- 2"
  • Depth

    48'- 0"

Plan Information

Main Floor Square Feet
1888
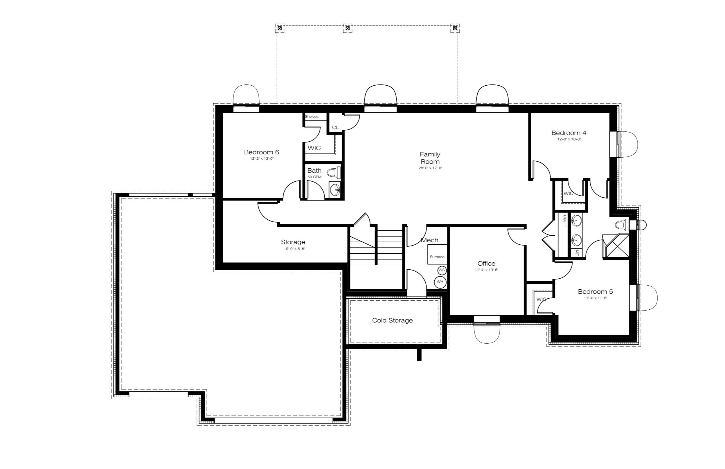
Basement Square Feet
1918
Garage Square Feet
930
Main Floor Wall Height
9'- 0"
Basement Wall Height
8'- 4"
Foundation Type
Basement
Primary Roof Pitch
9/12
Base Price - PDF - Single Build
$625
PDF - 5 Sets Printed - Single Build
$675
CAD File - Unlimited Build
$2025

Special Features

  • Rear Deck
  • Covered Porch
  • Cold Storage
  • Walk In Pantry
  • Jack N Jill Bathroom

Interested in this plan?

Purchase this plan as is or request modifications. Add your notes to the popout form with the link below or give us a call to discuss your plan.