Skip to the content

Plan #

1-1961

Base Price

$695

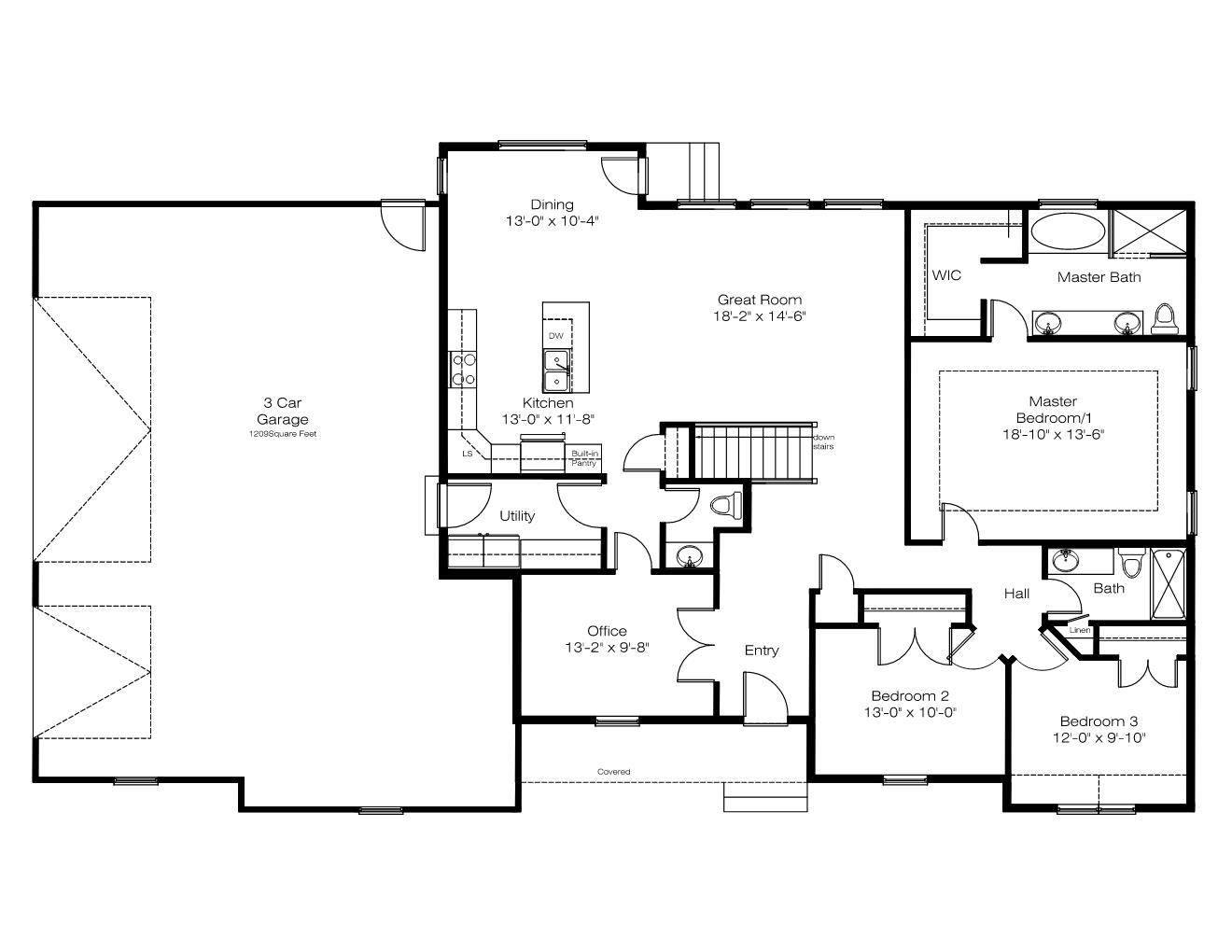
Single Family Home

  • Total Sq. Ft.

    3922
    1 Story
  • Beds

    5
    3 on main floor
  • Baths

    3-1/2
  • Bays

    2
  • Width

    79'
  • Depth

    45'-6"

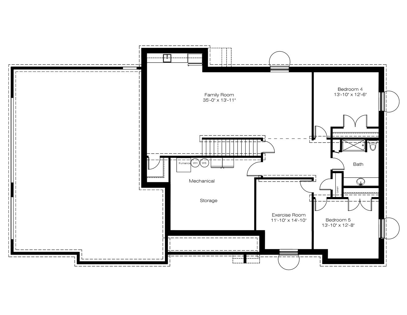
Plan Information

Main Floor Square Feet
1961
Basement Square Feet
1961
Garage Square Feet
1209
Main Floor Wall Height
9'
Basement Wall Height
9'
Foundation Type
Basement
Primary Roof Pitch
6/12
Base Price - PDF - Single Build
$695
PDF - 5 Sets Printed - Single Build
$745
CAD File - Unlimited Build
$2085

Special Features

  • Covered Porch
  • Side Load Garage

Interested in this plan?

Purchase this plan as is or request modifications. Add your notes to the popout form with the link below or give us a call to discuss your plan.