Skip to the content

Plan #

1-1970

Base Price

$695.00

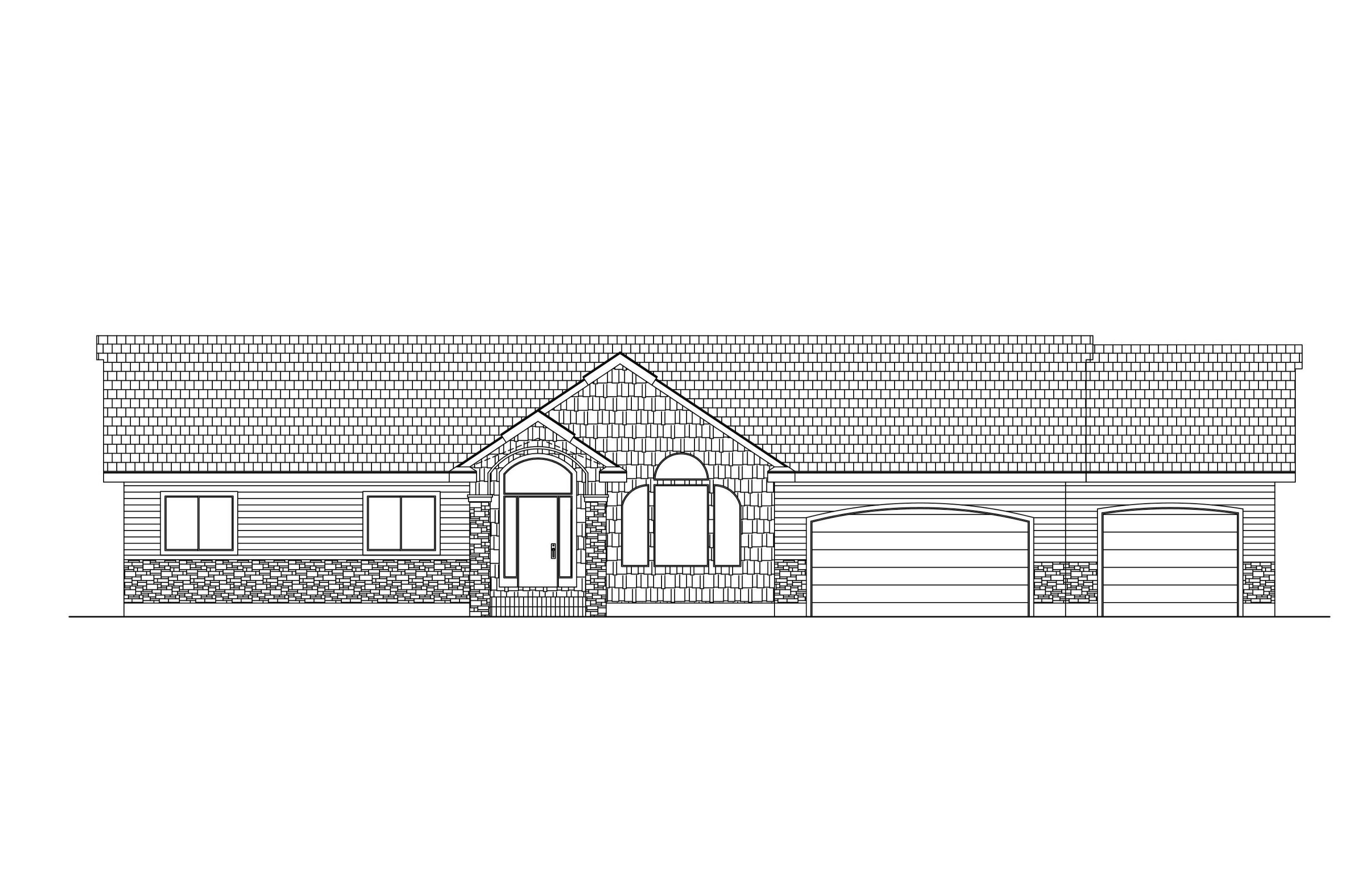
Single Family Home

  • Total Sq. Ft.

    3940
    1 Story
  • Beds

    6
    3 on main floor
  • Baths

    3
  • Bays

    3
  • Width

    84'- 4"
  • Depth

    42'

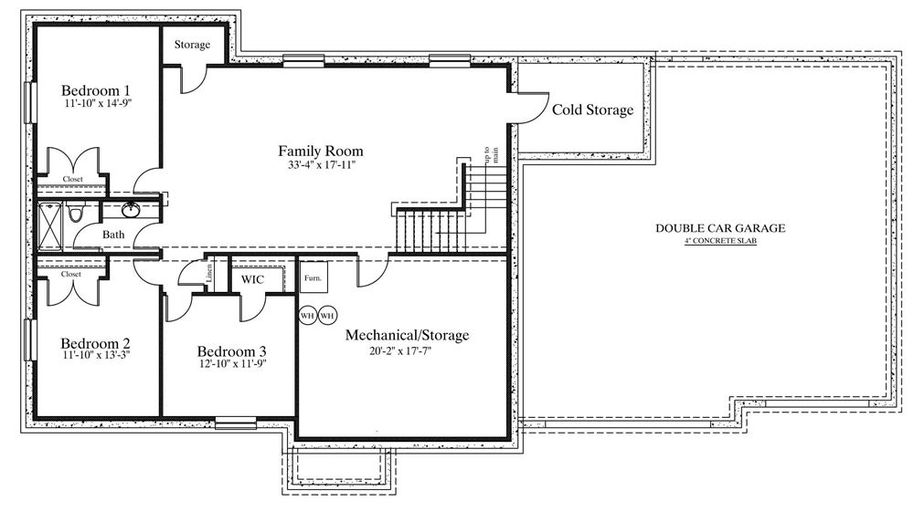
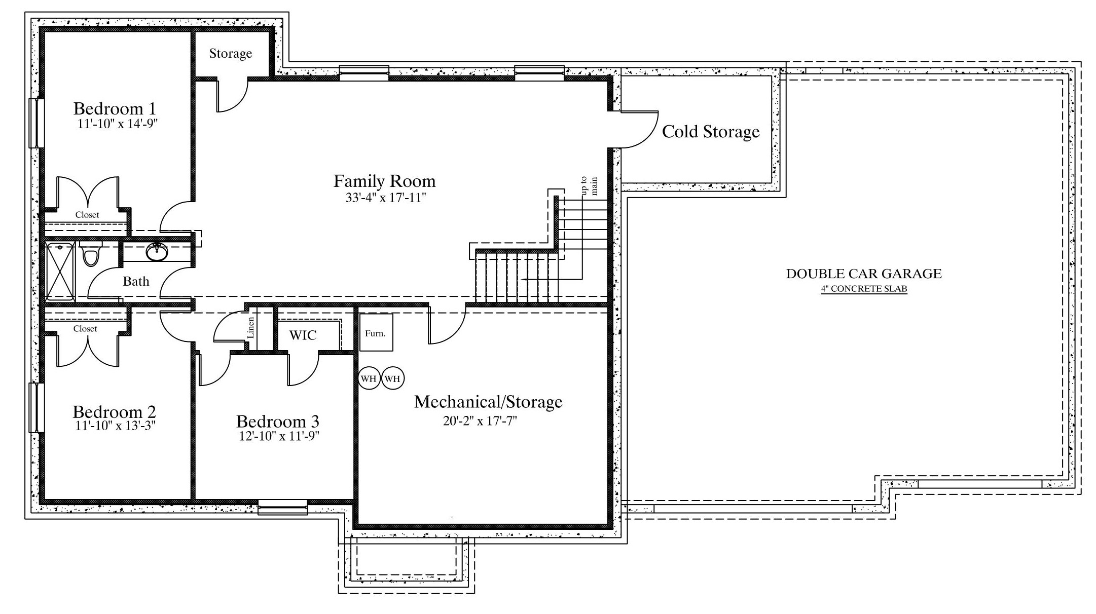
Single Story House Plan with Basement – 1970 Square Feet on Main Floor  ---  Stunning Single Story Family House Plan with nearly 4000 Sq. Ft. overall. Find Six (6) Bedrooms, Three (3) Bathrooms, and a 3 Car Garage. Plan includes large Master Suite, Living Room, and Fireplace on the Main Floor. Basement area includes Three (3) Bedrooms, large Family Room, and Cold Storage.  Plan may be Altered/Designed to fit your needs - Call today!

Plan Information

Main Floor Square Feet
1970
Basement Square Feet
1970
Garage Square Feet
1161
Main Floor Wall Height
9'- 0"
Basement Wall Height
9'- 0"
Foundation Type
Basement
Primary Roof Pitch
6/12
Base Price - PDF - Single Build
$695.00
PDF - 5 Sets Printed - Single Build
$745.00
CAD File - Unlimited Build
$2,085.00

Special Features

  • Covered Porch
  • Cold Storage
  • Walk In Pantry

Interested in this plan?

Purchase this plan as is or request modifications. Add your notes to the popout form with the link below or give us a call to discuss your plan.