Skip to the content

Plan #

1-2027

Base Price

$625

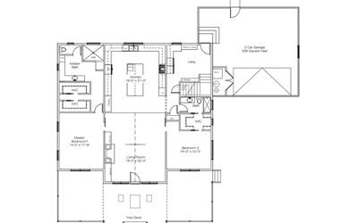
Single Family Home

  • Total Sq. Ft.

    2456
    1 Story
  • Beds

    2
    2 on main floor
  • Baths

    2
  • Bays

    1
  • Width

    75'-8"
  • Depth

    55'

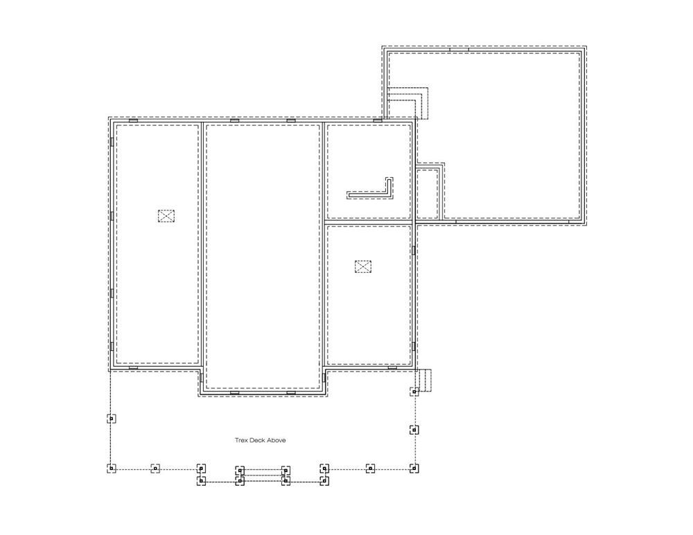
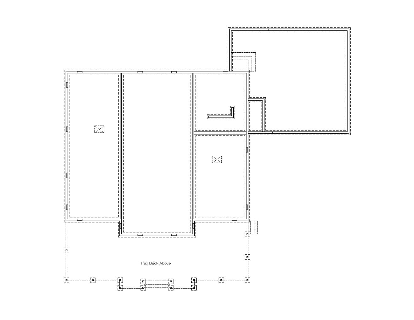
Plan Information

Main Floor Square Feet
2027
Bonus Room Square Feet
429
Garage Square Feet
809
Main Floor Wall Height
9'
Foundation Type
Crawl Space
Crawl Space Square Feet
2027
Primary Roof Pitch
7/12
Base Price - PDF - Single Build
$625
PDF - 5 Sets Printed - Single Build
$675
CAD File - Unlimited Build
$2025

Special Features

  • Secluded Master Bedroom
  • Bonus Room
  • Covered Porch
  • Jack N Jill Bathroom

Interested in this plan?

Purchase this plan as is or request modifications. Add your notes to the popout form with the link below or give us a call to discuss your plan.