Skip to the content

Plan #

1-2051

Base Price

$765.00

Single Family Home

  • Total Sq. Ft.

    4083
    1 Story
  • Beds

    6
    4 on main floor
  • Baths

    4
  • Bays

    3
  • Width

    72'- 0"
  • Depth

    55'- 0"

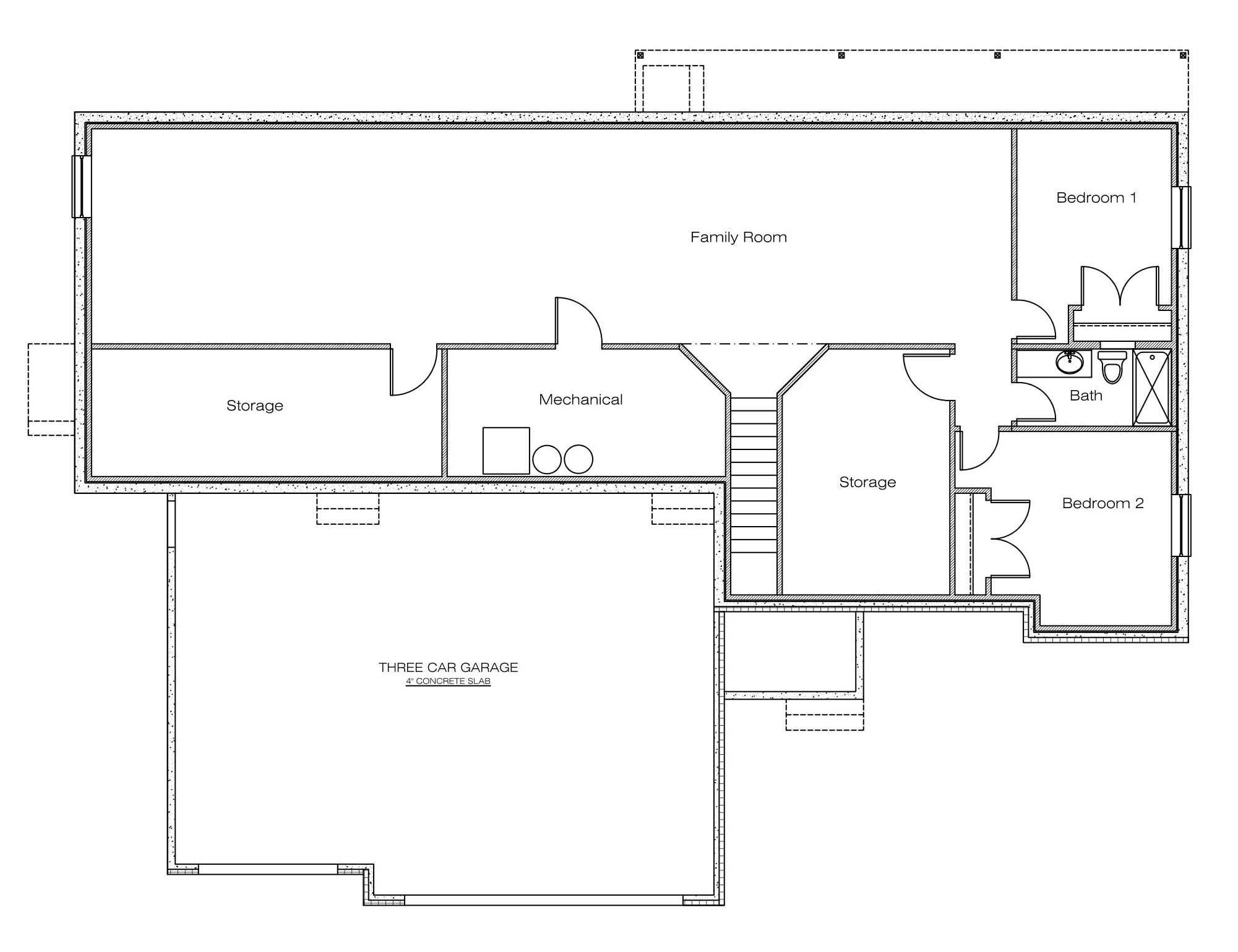
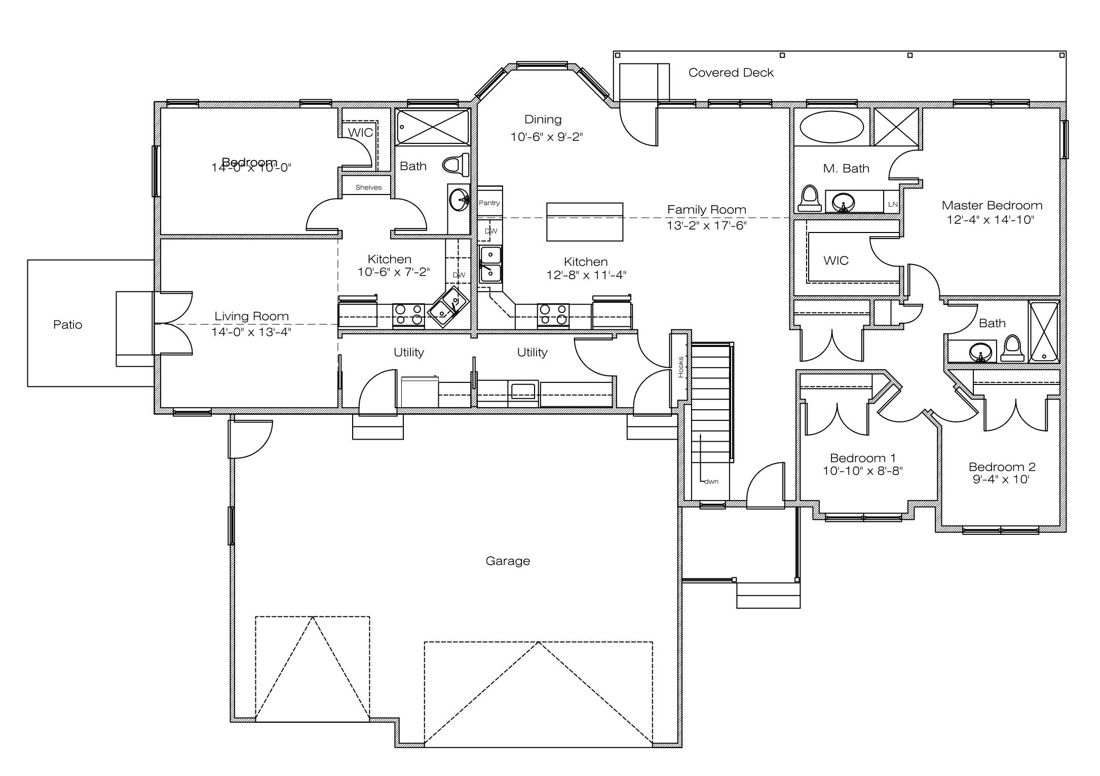
Single Story House Plan with MOTHER-IN-LAW SUITE – 2051 Square Feet on Main Floor --- Single Story Family House Plan with Mother In Law Suite boasting over 4000 Sq. Ft. with finished. Find 6 Bedrooms and 4 Bathrooms, overall. Main Floor includes easily defined separate Living Areas, separate Garage access to Mother in Law Suite, and a 3 Car Garage. Basement includes Two (2) Storage Rooms, a Family Room, and Two (2) Bedrooms.  Plan may be Altered/Designed to fit your needs - Call today!

Plan Information

Main Floor Square Feet
2051
Basement Square Feet
2032
Garage Square Feet
911
Main Floor Wall Height
8'- 0"
Basement Wall Height
8'- 0"
Foundation Type
Basement
Primary Roof Pitch
6/12
Base Price - PDF - Single Build
$765.00
PDF - 5 Sets Printed - Single Build
$815.00
CAD File - Unlimited Build
$2,295.00

Special Features

  • Rear Deck
  • Covered Porch
  • Breakfast Nook
  • Mother-in-Law Suite

Interested in this plan?

Purchase this plan as is or request modifications. Add your notes to the popout form with the link below or give us a call to discuss your plan.