Skip to the content

Plan #

1-2066

Base Price

$765

Single Family Home

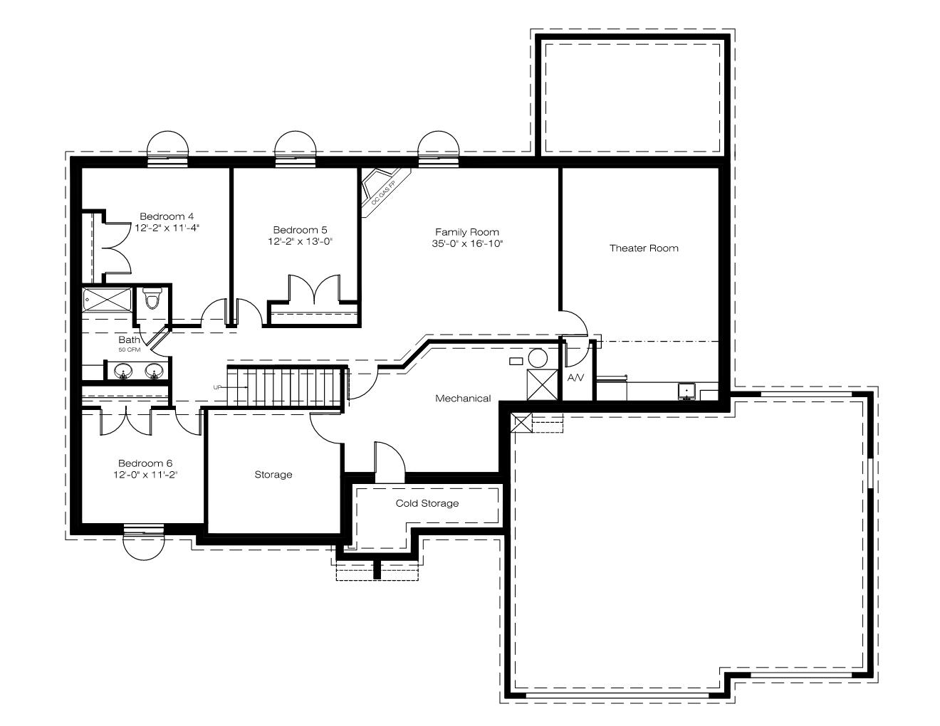
  • Total Sq. Ft.

    4132
    1 Story
  • Beds

    6
    3 on main floor
  • Baths

    3
  • Bays

    3
  • Width

    78'-6"
  • Depth

    53'

Plan Information

Main Floor Square Feet
2066
Basement Square Feet
2066
Garage Square Feet
1004
Main Floor Wall Height
9'
Basement Wall Height
9'
Foundation Type
Basement
Primary Roof Pitch
6/12
Base Price - PDF - Single Build
$765
PDF - 5 Sets Printed - Single Build
$815
CAD File - Unlimited Build
$2295

Special Features

  • Rear Deck
  • Covered Porch
  • Cold Storage
  • Walk In Pantry
  • Theater Room

Interested in this plan?

Purchase this plan as is or request modifications. Add your notes to the popout form with the link below or give us a call to discuss your plan.