Skip to the content

Plan #

1-2094

Base Price

$765.00

Single Family Home

  • Total Sq. Ft.

    4192
    2 Stories
  • Beds

    5
    1 on main floor
  • Baths

    3-1/2
  • Bays

    3
  • Width

    88'- 0"
  • Depth

    67'- 10"

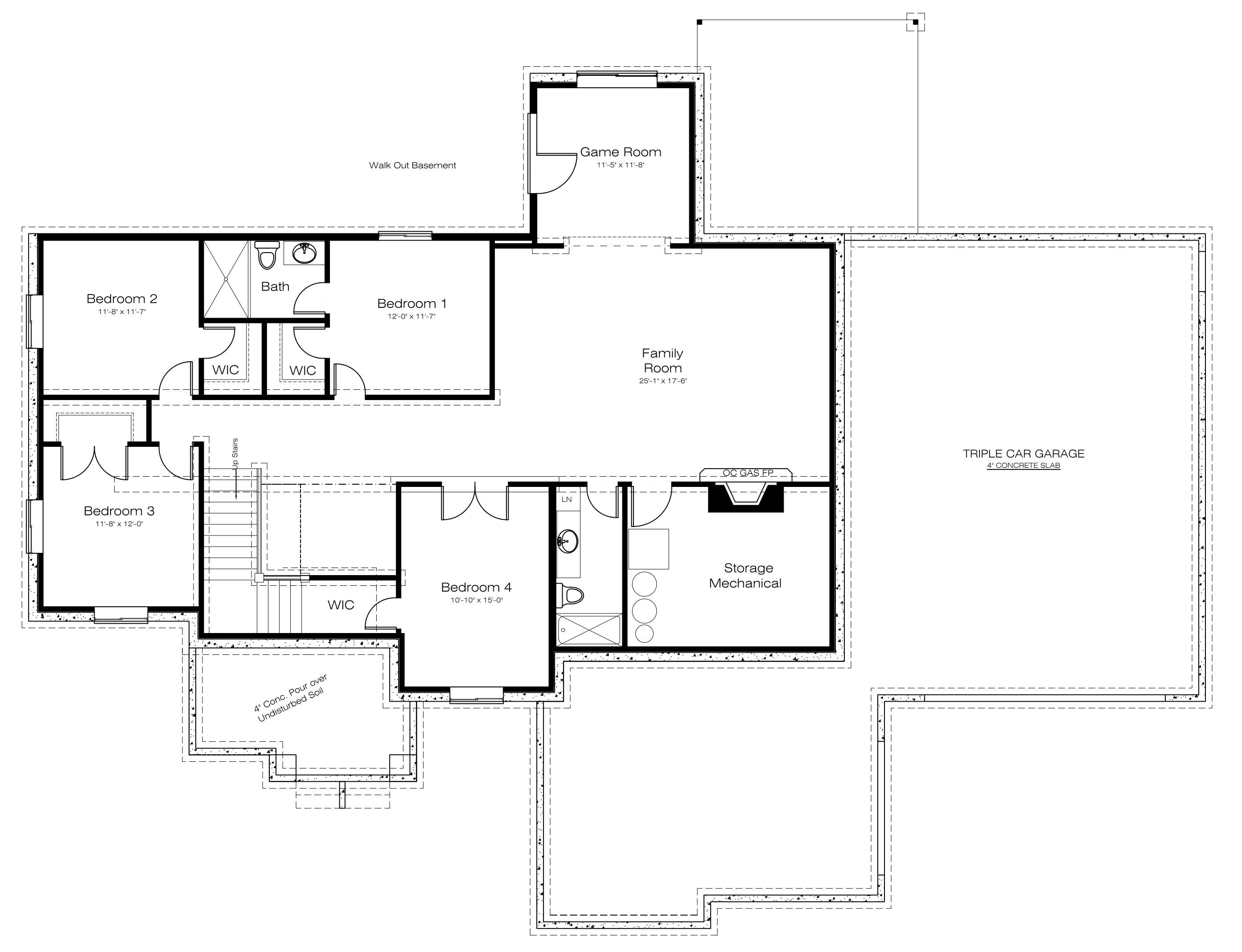
Single Story House Plan with Basement – 2094 Square Feet on Main Floor --- Fabulous Single Story Family House Plan boasting nearly 4200 Sq. Ft. with finished. Find 5 Bedrooms and 3.5 Bathrooms, overall. Main Floor includes an Pantry, Fireplace, Mud Room, Secluded Master Suite (only bedroom on Main), and a 3 Car Garage. Basement includes 4 Bedrooms and a Game Room.  Plan may be Altered/Designed to fit your needs - Call today!

Plan Information

Main Floor Square Feet
2094
Basement Square Feet
2094
Garage Square Feet
1424
Main Floor Wall Height
10'- 0"
Basement Wall Height
9'- 0"
Foundation Type
Basement
Primary Roof Pitch
10/12
Base Price - PDF - Single Build
$765.00
PDF - 5 Sets Printed - Single Build
$815.00
CAD File - Unlimited Build
$2,295.00

Special Features

  • Secluded Master Bedroom
  • Rear Deck
  • Covered Porch
  • Walk In Pantry

Interested in this plan?

Purchase this plan as is or request modifications. Add your notes to the popout form with the link below or give us a call to discuss your plan.