Skip to the content

Plan #

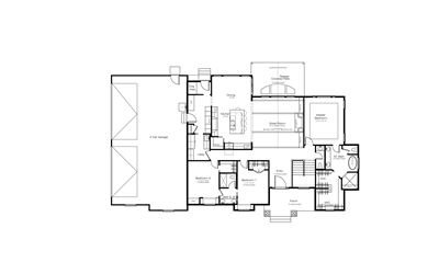
1-2386

Base Price

$695

Single Family Home

  • Total Sq. Ft.

    4775
    1 Story
  • Beds

    5
    3 on main floor
  • Baths

    3-1/2
  • Bays

    4
  • Width

    88'- 6"
  • Depth

    55'- 0"

Plan Information

Main Floor Square Feet
2386
Basement Square Feet
2387
Garage Square Feet
1284
Main Floor Wall Height
9'- 0"
Basement Wall Height
9'- 0"
Foundation Type
Basement
Primary Roof Pitch
10/12
Base Price - PDF - Single Build
$695
PDF - 5 Sets Printed - Single Build
$745
CAD File - Unlimited Build
$2235

Special Features

  • Secluded Master Bedroom
  • Rear Deck
  • Covered Porch
  • Side Load Garage
  • Cold Storage
  • Breakfast Nook
  • Walk In Pantry
  • Theater Room
  • Jack N Jill Bathroom

Interested in this plan?

Purchase this plan as is or request modifications. Add your notes to the popout form with the link below or give us a call to discuss your plan.