Skip to the content

Plan #

1-2451

Base Price

$865

Single Family Home

  • Total Sq. Ft.

    2896
    1 Story
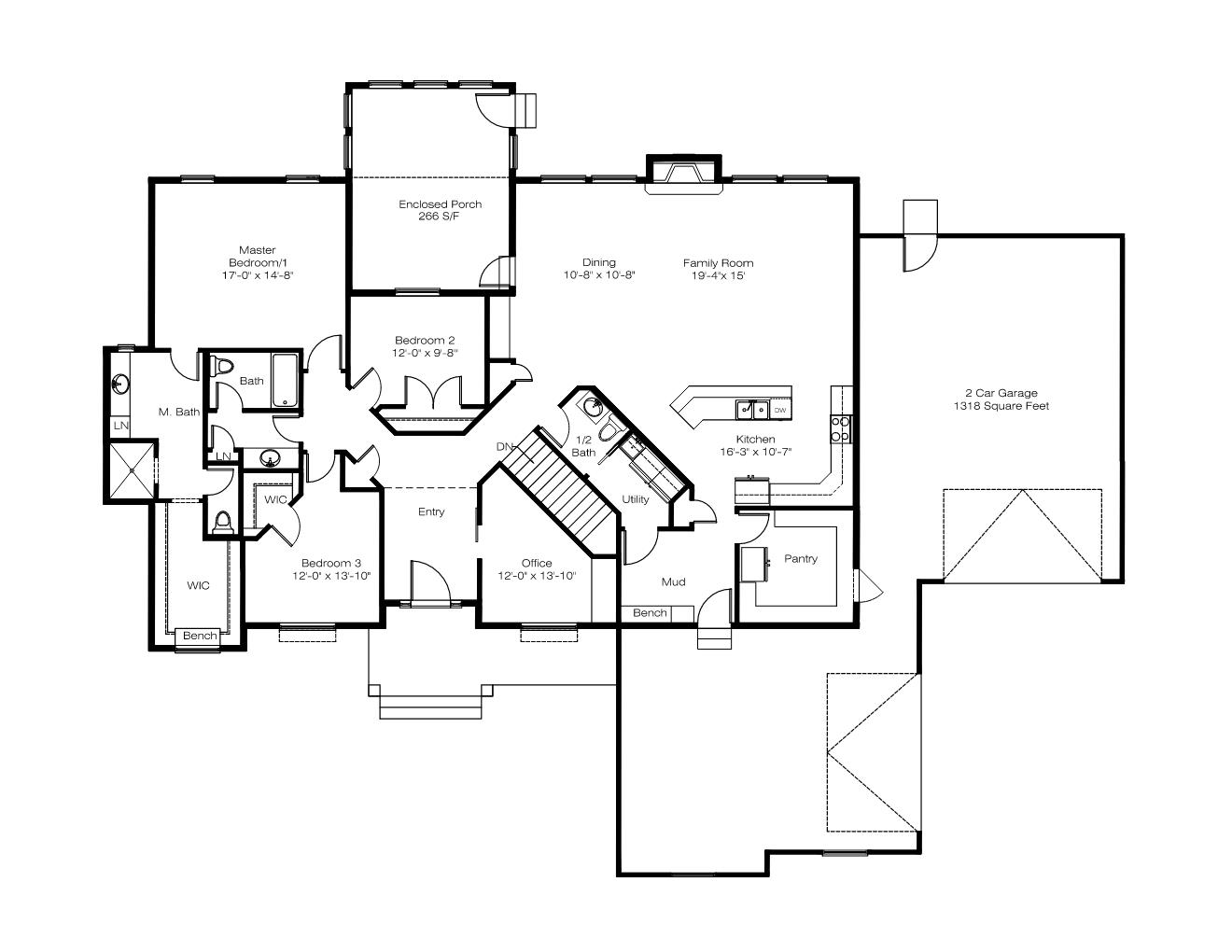
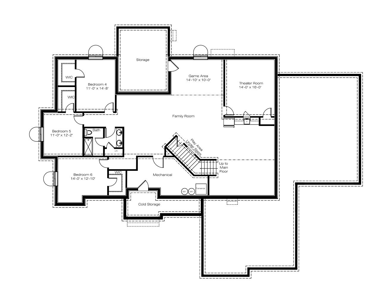
  • Beds

    6
    3 on main floor
  • Baths

    3-1/2
  • Bays

    2
  • Width

    90'-6"
  • Depth

    70'-5"

Plan Information

Main Floor Square Feet
2450
Basement Square Feet
2446
Garage Square Feet
1318
Main Floor Wall Height
9'
Basement Wall Height
9'
Foundation Type
Basement
Primary Roof Pitch
8/12
Base Price - PDF - Single Build
$865
PDF - 5 Sets Printed - Single Build
$975
CAD File - Unlimited Build
$2745

Special Features

  • Secluded Master Bedroom
  • Covered Porch
  • Side Load Garage
  • Cold Storage
  • Walk In Pantry
  • Play Room Under Stairs
  • Theater Room
  • Jack N Jill Bathroom

Interested in this plan?

Purchase this plan as is or request modifications. Add your notes to the popout form with the link below or give us a call to discuss your plan.