Skip to the content

Plan #

1-2543

Base Price

$865

Single Family Home

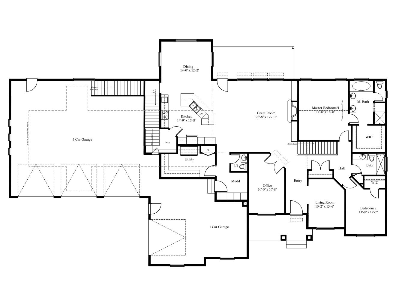
  • Total Sq. Ft.

    5967
    1 Story
  • Beds

    5
    2 on main floor
  • Baths

    4-1/2
  • Bays

    4
  • Width

    105'-8"
  • Depth

    63'-4"

Plan Information

Main Floor Square Feet
2543
Basement Square Feet
2525
Bonus Room Square Feet
899
Garage Square Feet
146
Main Floor Wall Height
9'
Basement Wall Height
9'
Foundation Type
Basement
Primary Roof Pitch
8/12
Base Price - PDF - Single Build
$865
PDF - 5 Sets Printed - Single Build
$915
CAD File - Unlimited Build
$2745

Special Features

  • Bonus Room
  • Rear Deck
  • Covered Porch
  • Side Load Garage
  • Cold Storage
  • Walk In Pantry
  • Theater Room

Interested in this plan?

Purchase this plan as is or request modifications. Add your notes to the popout form with the link below or give us a call to discuss your plan.