Skip to the content

Plan #

1-2576

Base Price

$865.00

Single Family Home

  • Total Sq. Ft.

    5209
    1 Story
  • Beds

    5
    3 on main floor
  • Baths

    4
  • Bays

    3
  • Width

    89'- 8"
  • Depth

    73'- 4"

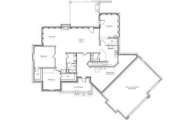
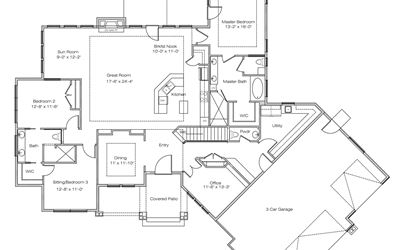
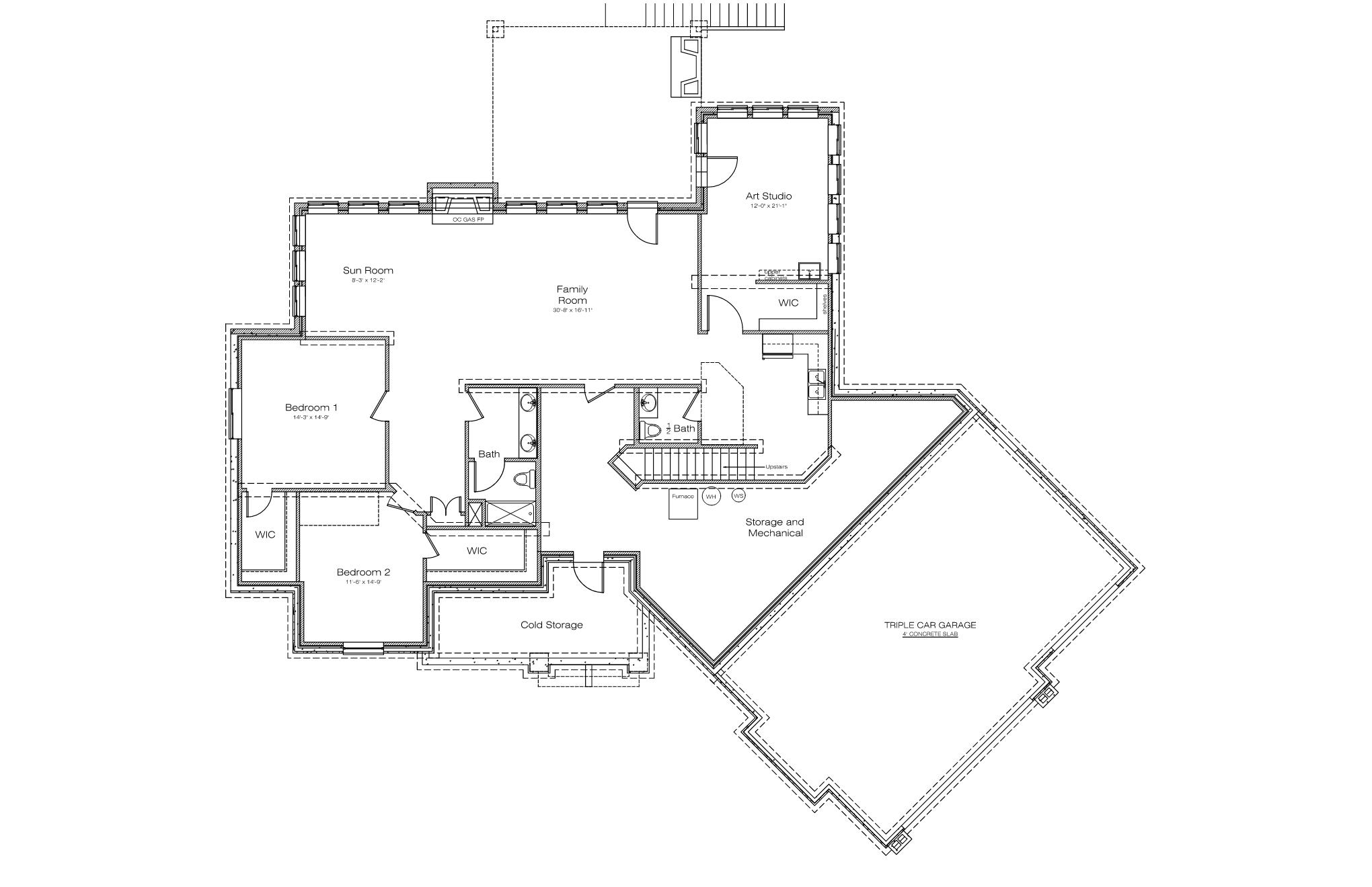
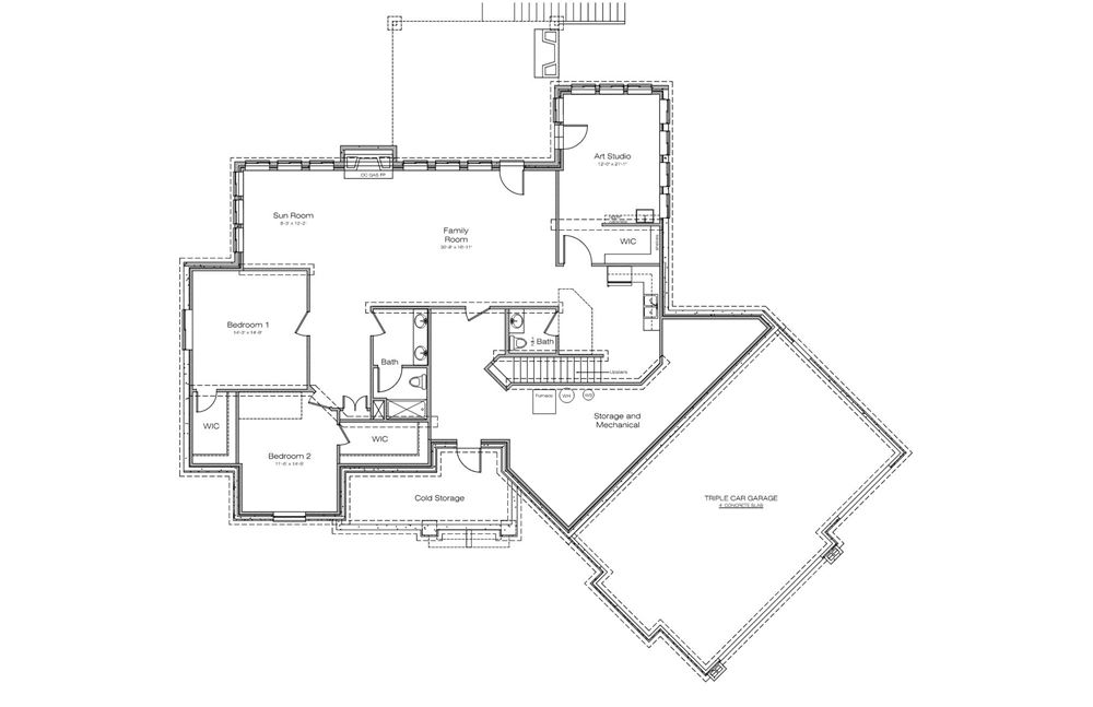
Single Story House Plan with Basement 2576 Square Feet on Main Floor  ---  Sensational Single Story Family House Plan boasting over 5500 Sq. Ft. with finished.  Find Five (5) Bedrooms and Four (4) Bathrooms, overall.  Main Floor includes an Pantry, Covered Front Porch, Covered Back Porch, Mud Room, Secluded Master Suite, Sun Room, Art Room, Office, and 3 Car Garage.  Plan may be Altered/Designed to fit your needs - Call today!

Plan Information

Main Floor Square Feet
2576
Basement Square Feet
2633
Garage Square Feet
880
Main Floor Wall Height
9'- 0"
Basement Wall Height
9'- 4"
Foundation Type
Walkout Basement
Primary Roof Pitch
10/12
Base Price - PDF - Single Build
$865.00
PDF - 5 Sets Printed - Single Build
$915.00
CAD File - Unlimited Build
$2,745.00

Special Features

  • Secluded Master Bedroom
  • Rear Deck
  • Covered Porch
  • Side Load Garage
  • Cold Storage
  • Breakfast Nook
  • Theater Room

Interested in this plan?

Purchase this plan as is or request modifications. Add your notes to the popout form with the link below or give us a call to discuss your plan.