Skip to the content

Plan #

1-2719

Base Price

$865

Single Family Home

  • Total Sq. Ft.

    3235
    1 Story
  • Beds

    5
    4 on main floor
  • Baths

    3-1/2
  • Bays

    1
  • Width

    76'-6"
  • Depth

    71'

Plan Information

Main Floor Square Feet
2719
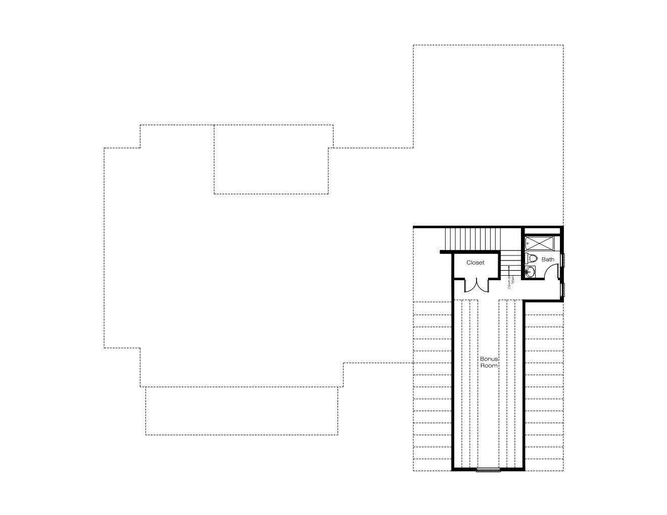
Bonus Room Square Feet
516
Garage Square Feet
662
Main Floor Wall Height
10'
Foundation Type
Crawl Space
Crawl Space Square Feet
2719
Primary Roof Pitch
7/12
Base Price - PDF - Single Build
$865
PDF - 5 Sets Printed - Single Build
$915
CAD File - Unlimited Build
$2745

Special Features

  • Secluded Master Bedroom
  • Bonus Room
  • Rear Deck
  • Covered Porch
  • Side Load Garage
  • Walk In Pantry

Interested in this plan?

Purchase this plan as is or request modifications. Add your notes to the popout form with the link below or give us a call to discuss your plan.