Skip to the content

Plan #

1-2978

Base Price

$785

Single Family Home

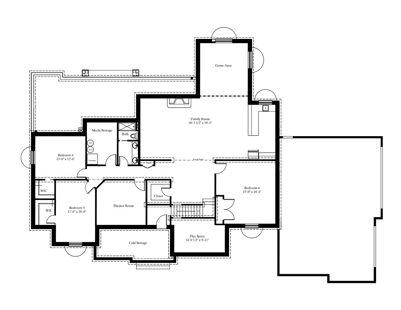
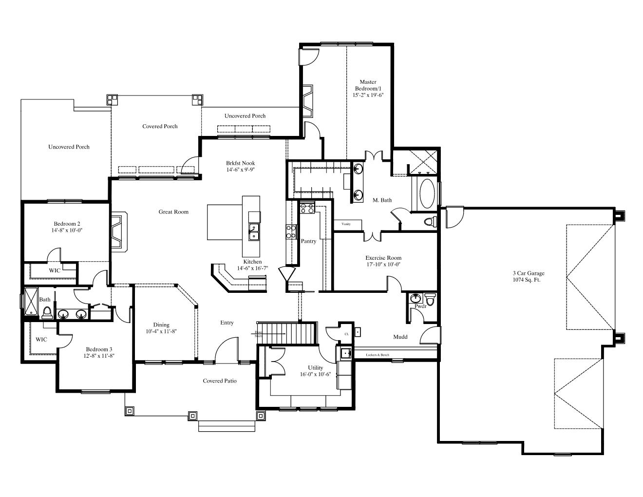
  • Total Sq. Ft.

    5956
    1 Story
  • Beds

    6
    3 on main floor
  • Baths

    3-1/2
  • Bays

    2
  • Width

    103'-8"
  • Depth

    70'-8"

Plan Information

Main Floor Square Feet
2978
Basement Square Feet
2978
Garage Square Feet
1074
Main Floor Wall Height
9'
Basement Wall Height
9'
Foundation Type
Basement
Primary Roof Pitch
10/12
Base Price - PDF - Single Build
$785
PDF - 5 Sets Printed - Single Build
$835
CAD File - Unlimited Build
$2505

Special Features

  • Secluded Master Bedroom
  • Rear Deck
  • Covered Porch
  • Side Load Garage
  • Cold Storage
  • Breakfast Nook
  • Walk In Pantry
  • Theater Room

Interested in this plan?

Purchase this plan as is or request modifications. Add your notes to the popout form with the link below or give us a call to discuss your plan.