Skip to the content

Plan #

2-1454

Base Price

$625.00

Single Family Home

  • Total Sq. Ft.

    4545
    2 Stories
  • Beds

    4
    0 on main floor
  • Baths

    3-1/2
  • Bays

    3
  • Width

    62'- 6"
  • Depth

    57'- 0"

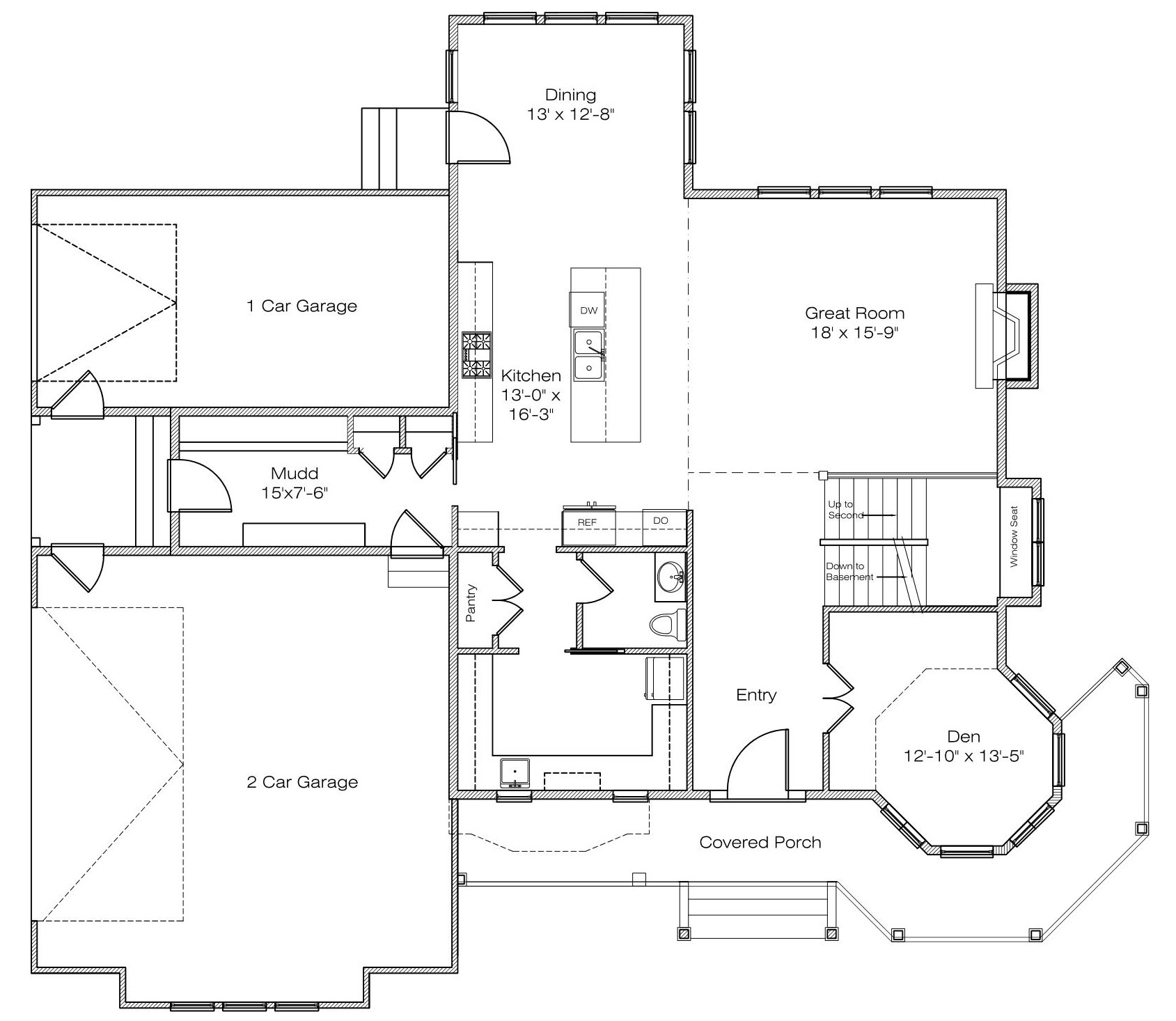
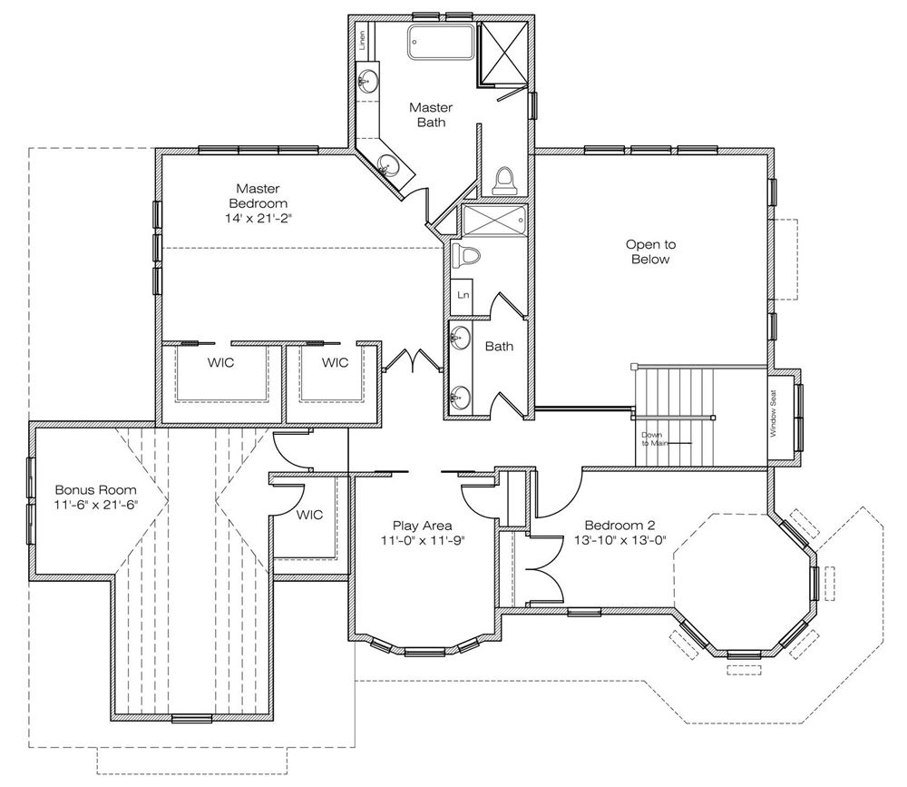
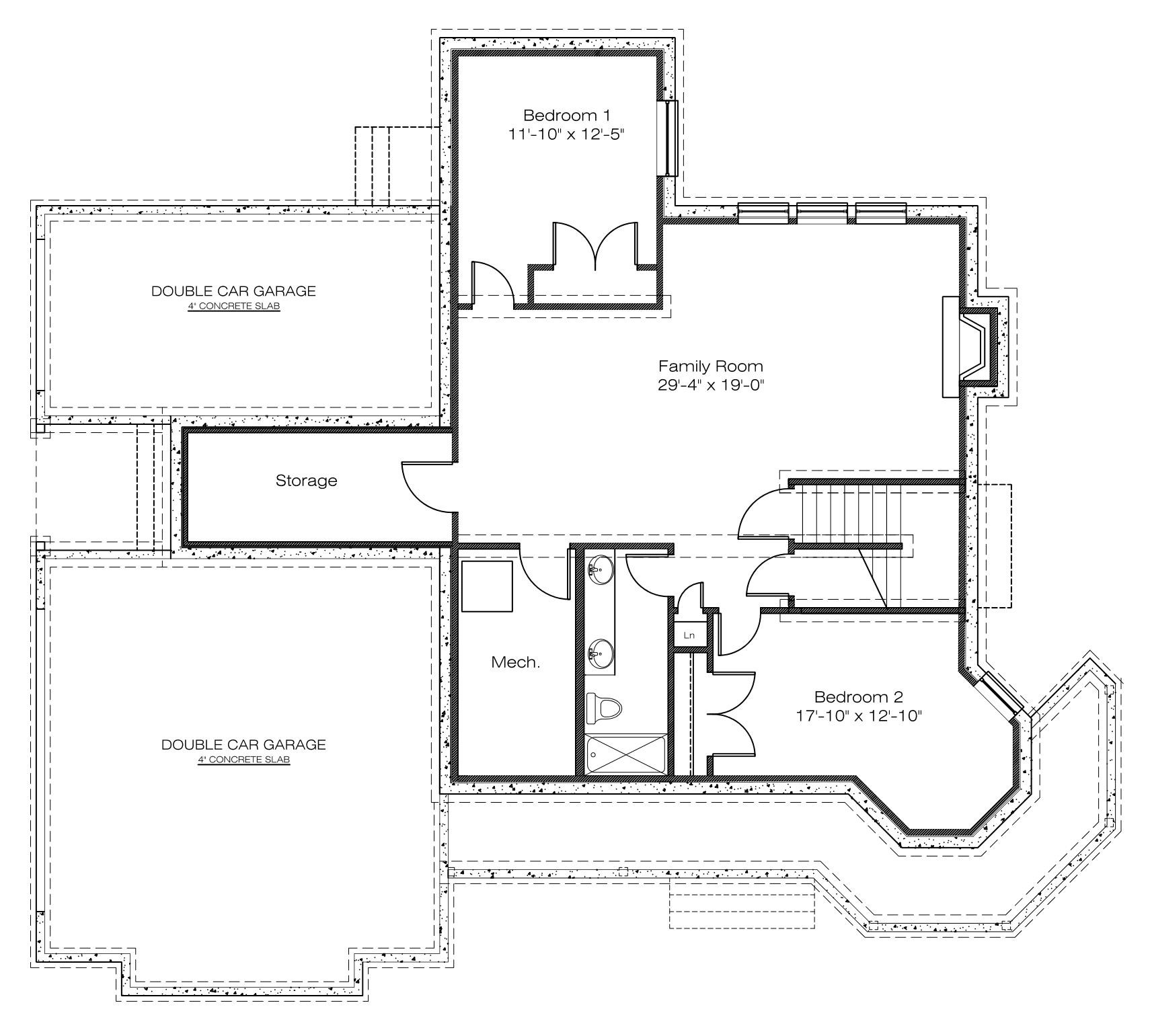
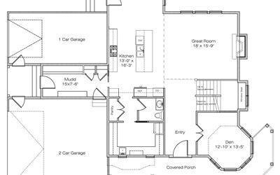
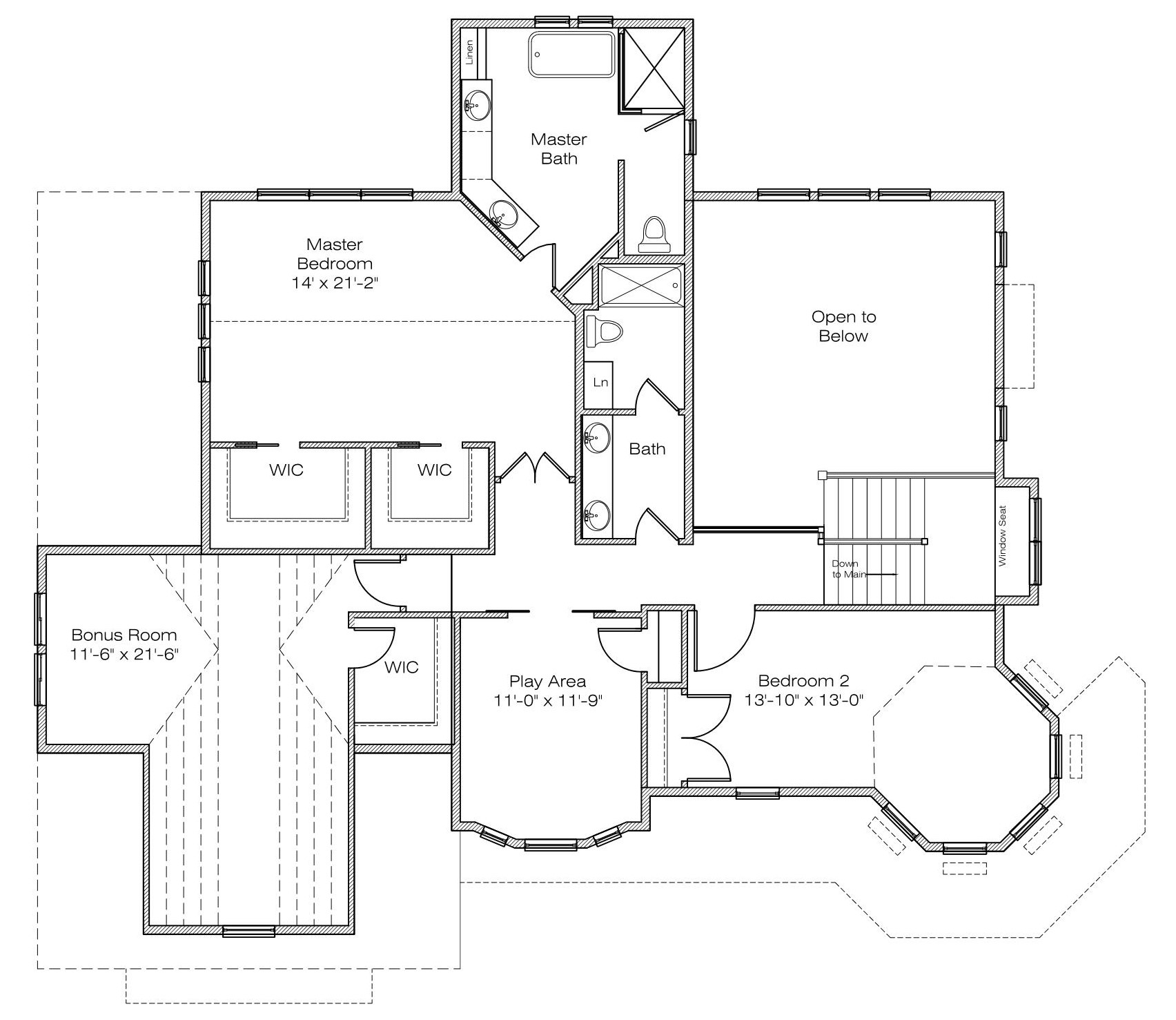
Two Story House Plan with Basement – 1454 Square Feet on Main Floor  ---  Outstanding Two Story Family House Plan boasting over 4500 Sq. Ft. with finished!  Find Four (4) Bedrooms and 3.5 Bathrooms, overall.  Main Floor includes a Secluded Master Suite, Covered Patio, Mud Room, and Gas Fireplace.  Plan may be Altered/Designed to fit your needs - Call today!

Plan Information

Main Floor Square Feet
1454
Second Floor Square Feet
1241
Basement Square Feet
1441
Bonus Room Square Feet
409
Garage Square Feet
917
Main Floor Wall Height
9'- 0"
Second Floor Wall Height
8'- 0"
Basement Wall Height
9'- 0"
Foundation Type
Basement
Primary Roof Pitch
7/12
Base Price - PDF - Single Build
$625.00
PDF - 5 Sets Printed - Single Build
$675.00
CAD File - Unlimited Build
$2,025.00

Special Features

  • Secluded Master Bedroom
  • Bonus Room
  • No Master Bedroom On Main Floor

Interested in this plan?

Purchase this plan as is or request modifications. Add your notes to the popout form with the link below or give us a call to discuss your plan.