Skip to the content

Plan #

2-1778

Base Price

$795

Single Family Home

  • Total Sq. Ft.

    4081
    2 Stories
  • Beds

    6
    1 on main floor
  • Baths

    3-1/2
  • Bays

    2
  • Width

    72'-6"
  • Depth

    53'

Plan Information

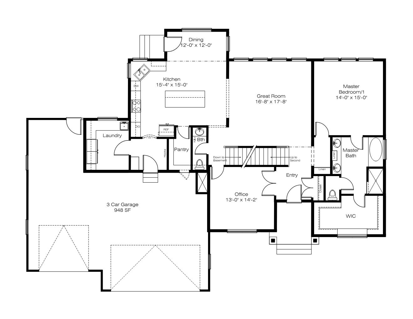
Main Floor Square Feet
1778
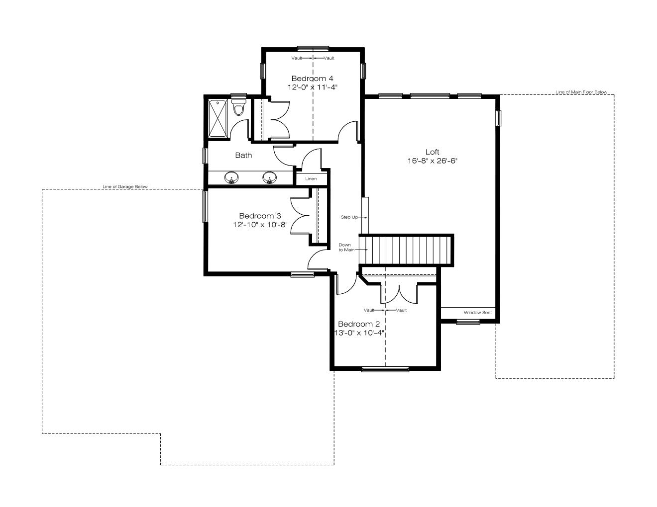
Second Floor Square Feet
1152
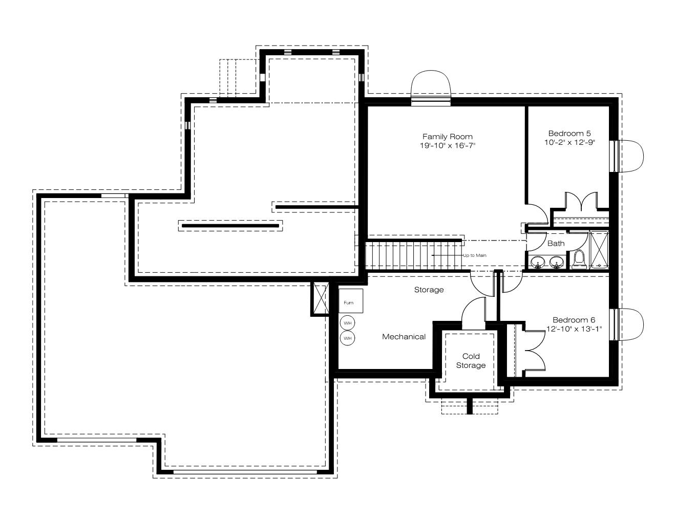
Basement Square Feet
1151
Garage Square Feet
949
Main Floor Wall Height
9'
Second Floor Wall Height
9'
Basement Wall Height
9'
Foundation Type
Basement
Primary Roof Pitch
8/12
Base Price - PDF - Single Build
$795
PDF - 5 Sets Printed - Single Build
$845
CAD File - Unlimited Build
$2535

Special Features

  • Secluded Master Bedroom
  • Rear Deck
  • Covered Porch
  • Side Load Garage
  • Cold Storage
  • Walk In Pantry

Interested in this plan?

Purchase this plan as is or request modifications. Add your notes to the popout form with the link below or give us a call to discuss your plan.