Skip to the content

Plan #

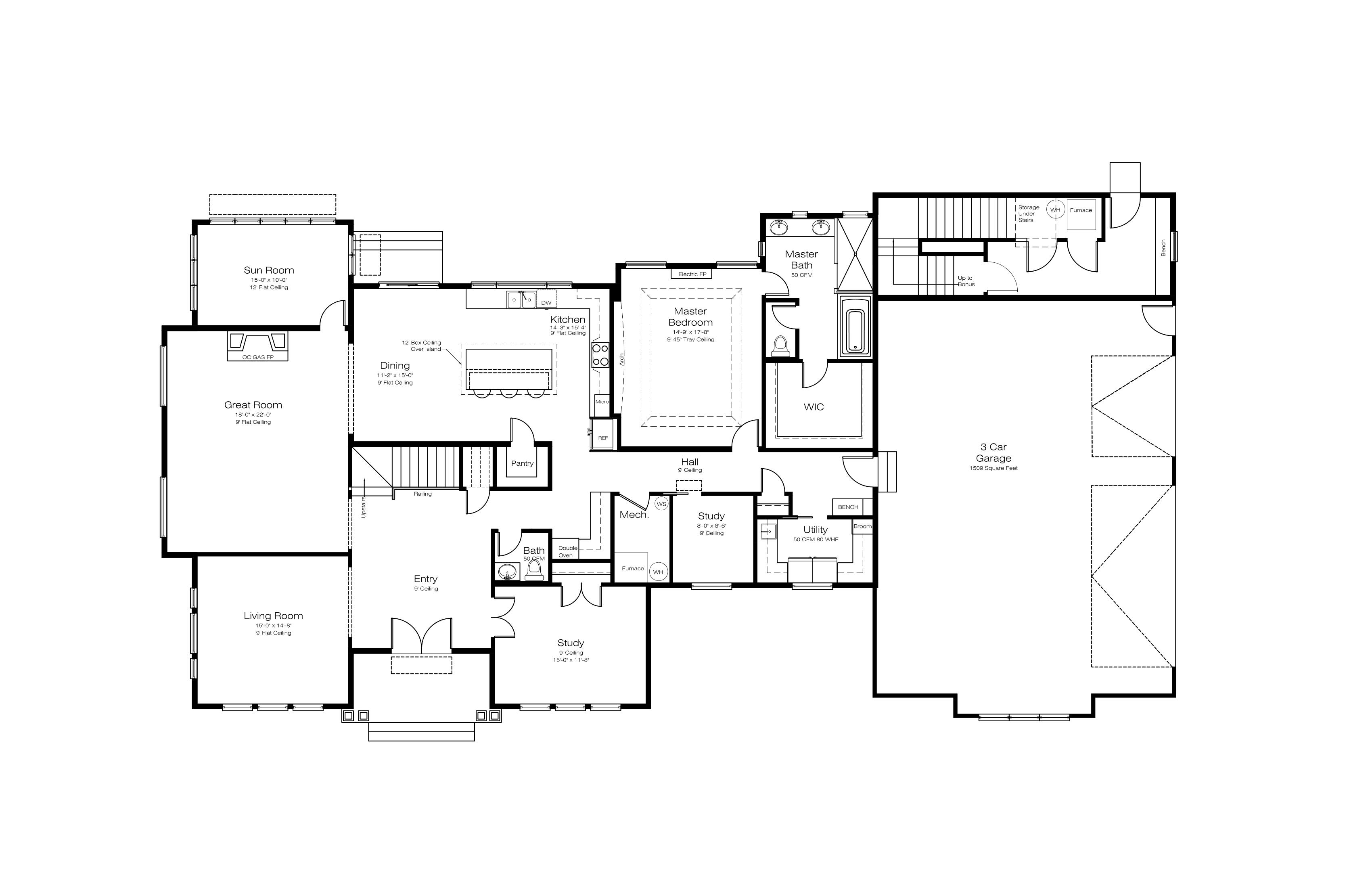
2-2804

Base Price

$785

Single Family Home

  • Total Sq. Ft.

    4848
    2 Stories
  • Beds

    4
    1 on main floor
  • Baths

    4-1/2
  • Bays

    3
  • Width

    100'- 6"
  • Depth

    52'- 0"

Plan Information

Main Floor Square Feet
2804
Second Floor Square Feet
1131
Bonus Room Square Feet
913
Garage Square Feet
1509
Main Floor Wall Height
9'- 0"
Second Floor Wall Height
9'- 0"
Foundation Type
Crawl Space
Crawl Space Square Feet
2804
Primary Roof Pitch
8/12
Base Price - PDF - Single Build
$785
PDF - 5 Sets Printed - Single Build
$835
CAD File - Unlimited Build
$2505

Special Features

  • Secluded Master Bedroom
  • Bonus Room
  • Rear Deck
  • Covered Porch
  • Side Load Garage
  • Breakfast Nook
  • Walk In Pantry

Interested in this plan?

Purchase this plan as is or request modifications. Add your notes to the popout form with the link below or give us a call to discuss your plan.