Skip to the content

Plan #

C-2-1620

Base Price

$725.00

Cabin

  • Total Sq. Ft.

    2695
    2 Stories
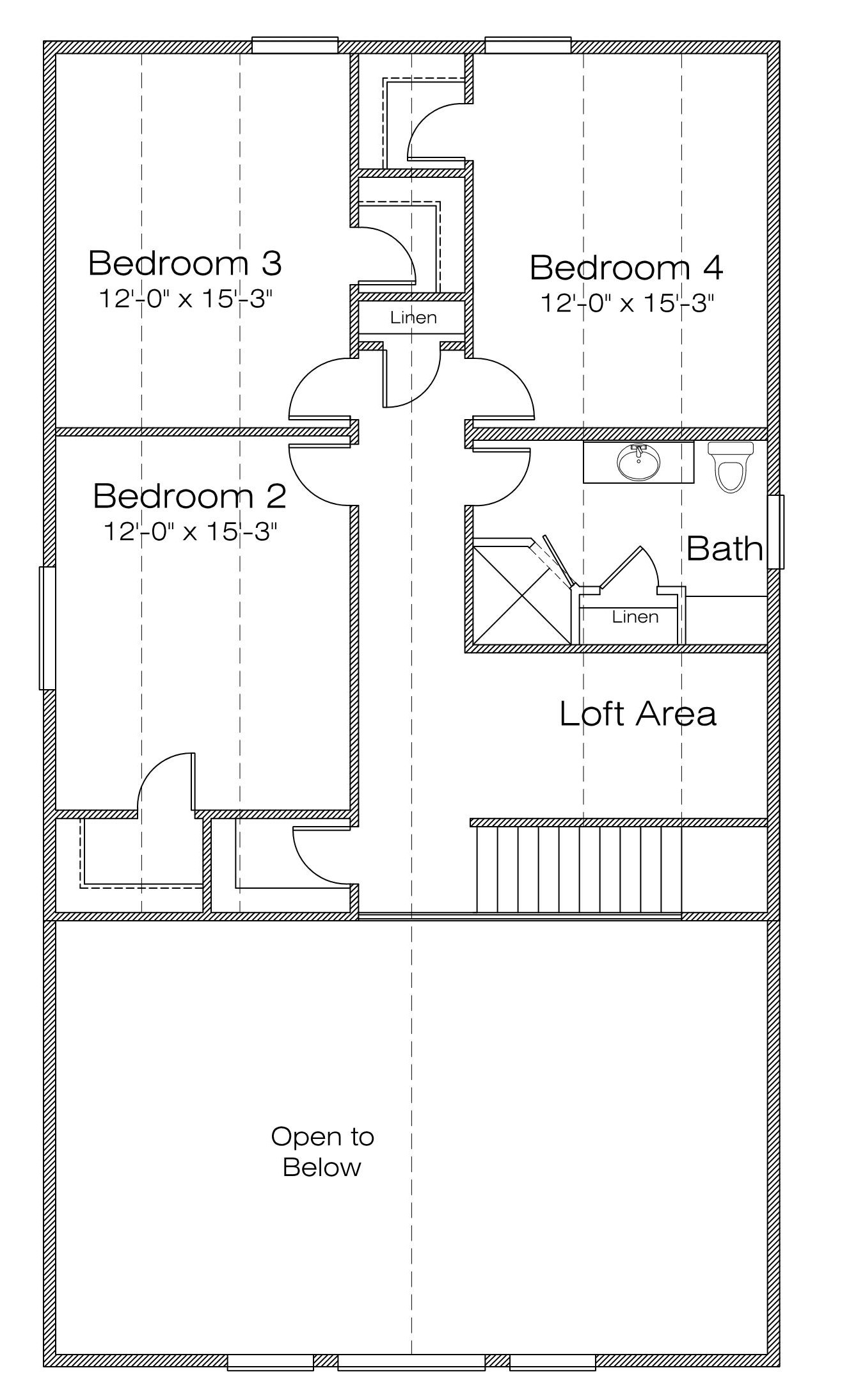
  • Beds

    5
    1 on main floor
  • Baths

    3
  • Bays

    2
  • Width

    30'- 0"
  • Depth

    54'- 0"

Two Story Cabin Plan with Crawl Space – 1620 Sq. Ft. on Main Floor  ---  Two Story Cabin and Vacation Home Plan – 1620 Sq. Ft. on Main Floor.  Popular Cabin Plan includes Living Room, Mud Room, Pantry, Fireplace, and Covered Porch on the Main Floor.  Plan may be Designed to fit your needs - Call today!

Plan Information

Main Floor Square Feet
1620
Second Floor Square Feet
1075
Garage Square Feet
900
Main Floor Wall Height
9'- 0"
Second Floor Wall Height
8'- 0"
Foundation Type
Crawl Space
Primary Roof Pitch
6/12
Base Price - PDF - Single Build
$725.00
PDF - 5 Sets Printed - Single Build
$775.00
CAD File - Unlimited Build
$2,175.00

Special Features

  • Rear Deck
  • Covered Porch

Interested in this plan?

Purchase this plan as is or request modifications. Add your notes to the popout form with the link below or give us a call to discuss your plan.