Skip to the content

Plan #

C-2-1818

Base Price

$795.00

Cabin

  • Total Sq. Ft.

    5384
    2 Stories
  • Beds

    6
    1 on main floor
  • Baths

    4-1/2
  • Bays

    2
  • Width

    86'- 0"
  • Depth

    36'- 0"

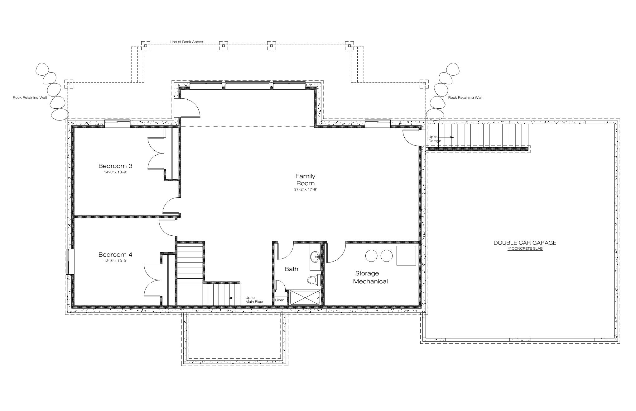
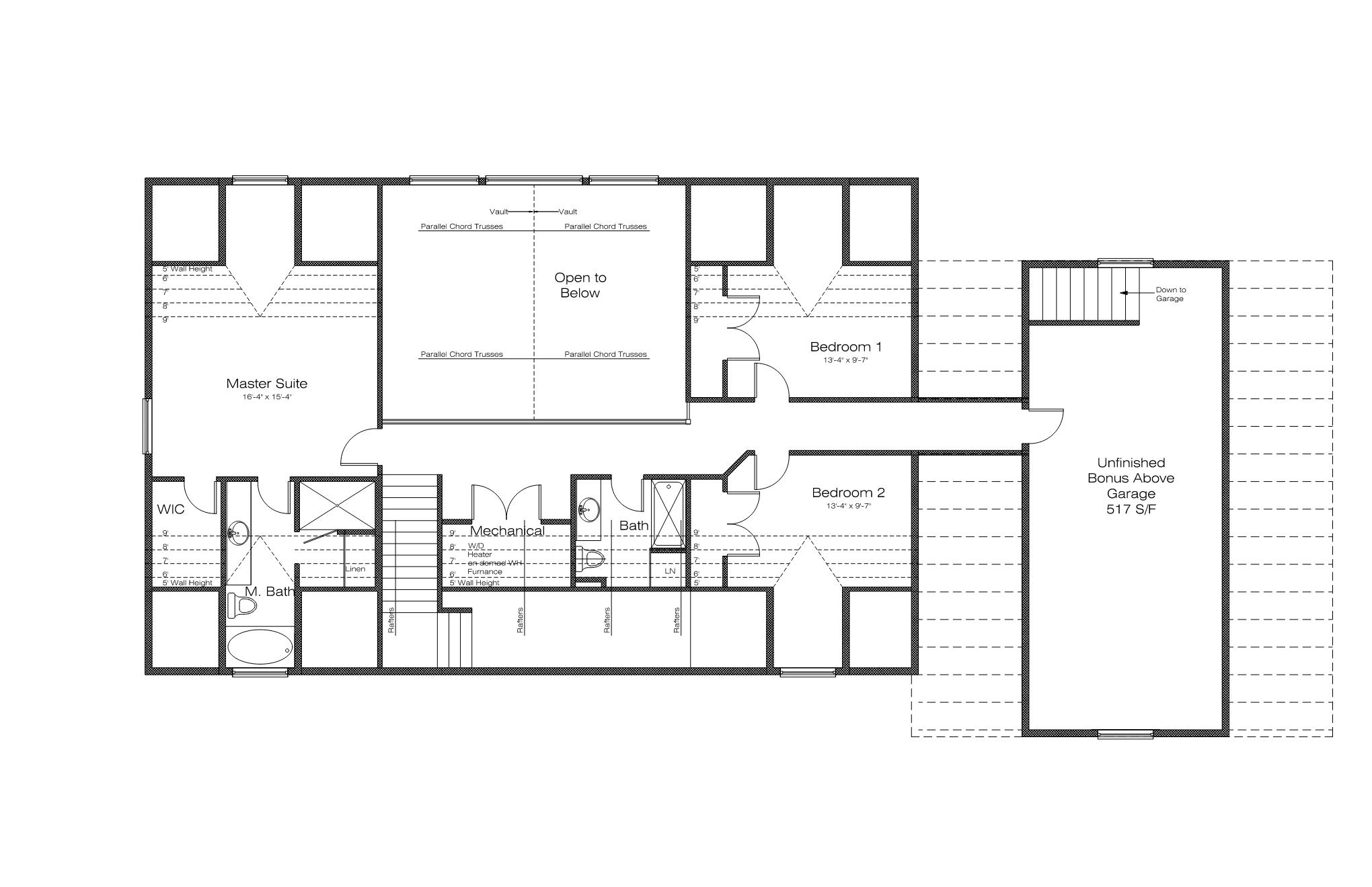
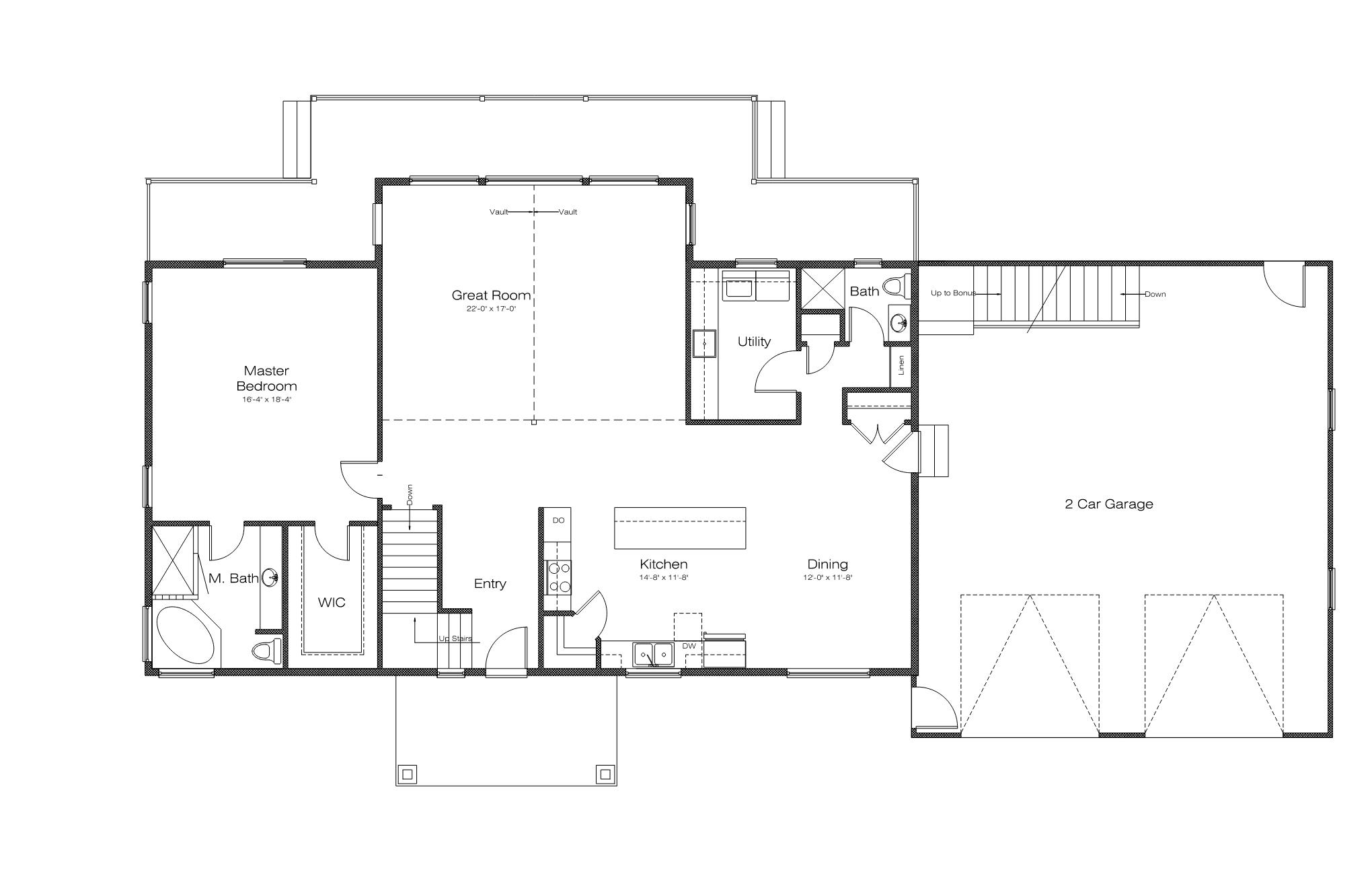
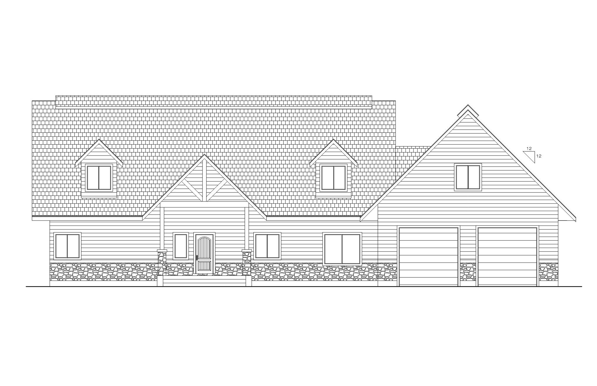
Two Story Cabin Plan with Basement – 1818 Square Feet on Main Floor  ---  Stunning Cabin Plan with over 5400 Sq. Ft. with Six (6) Bedrooms 4.5 Bathrooms! 2 Story Cabin with Full Basement. Second Floor includes Second Master Suite, Bonus Room, and Vaulted Ceilings. 2 Car Garage.  Plan may be altered/designed to fit your needs - Call today!

Plan Information

Main Floor Square Feet
1818
Second Floor Square Feet
1748
Basement Square Feet
1818
Garage Square Feet
1037
Main Floor Wall Height
9'- 0"
Second Floor Wall Height
8'- 0"
Basement Wall Height
9'- 0"
Foundation Type
Basement
Primary Roof Pitch
12/12
Base Price - PDF - Single Build
$795.00
PDF - 5 Sets Printed - Single Build
$845.00
CAD File - Unlimited Build
$2,535.00

Special Features

  • Secluded Master Bedroom
  • Rear Deck
  • Covered Porch
  • Cold Storage

Interested in this plan?

Purchase this plan as is or request modifications. Add your notes to the popout form with the link below or give us a call to discuss your plan.