Skip to the content

Plan #

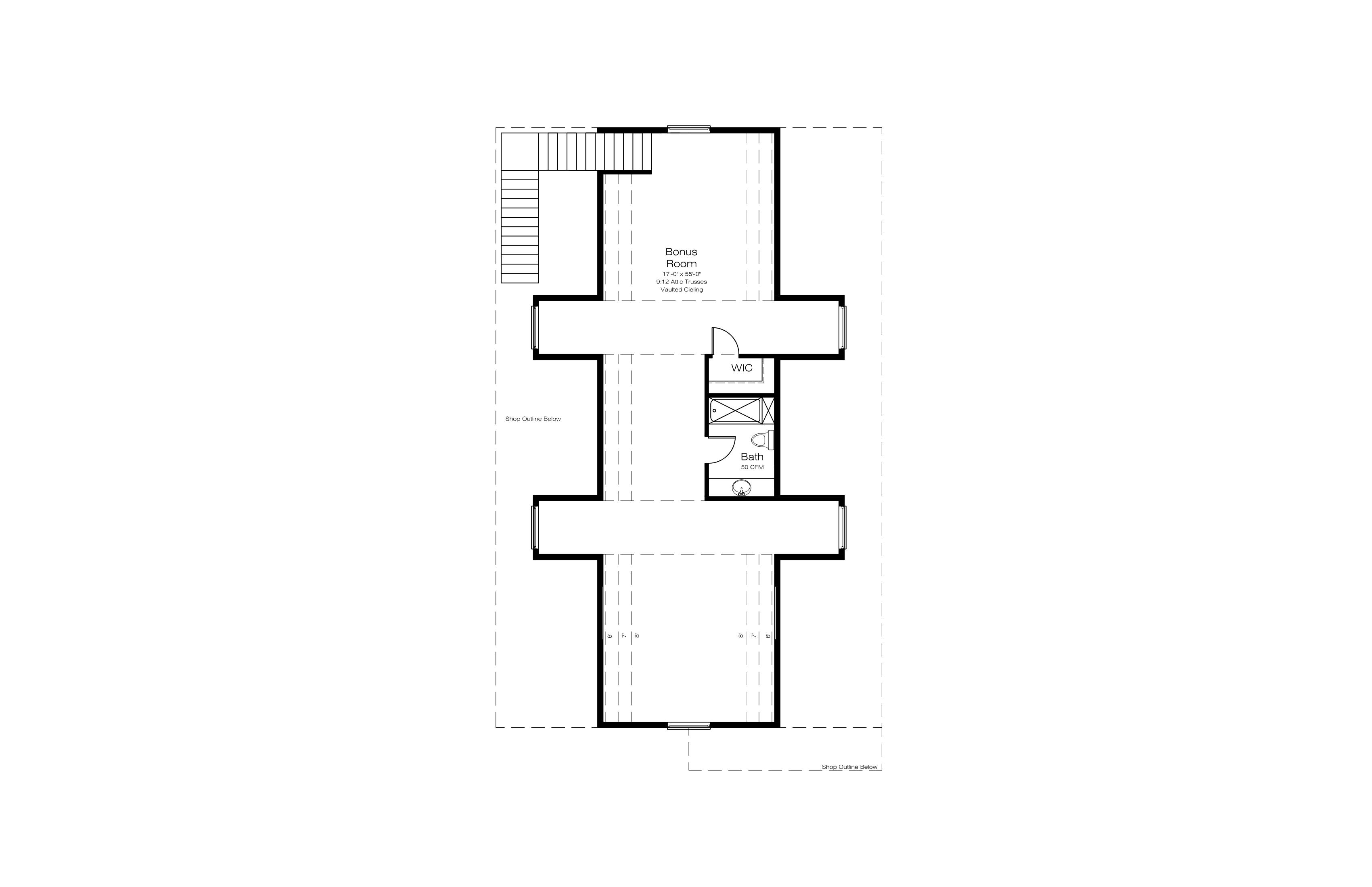
S-36x60

Base Price

$350

Shop

  • Total Sq. Ft.

    3112
    1 Story
  • Beds

    0
    0 on main floor
  • Baths

    1
  • Bays

    2
  • Width

    36'- 0"
  • Depth

    60'- 0"

Plan Information

Bonus Room Square Feet
1096
Garage Square Feet
2088
Main Floor Wall Height
14'- 0"
Foundation Type
Slab on Grade
Primary Roof Pitch
9/12
Base Price - PDF - Single Build
$350
PDF - 5 Sets Printed - Single Build
$400
CAD File - Unlimited Build
$1000

Special Features

  • Bonus Room

Interested in this plan?

Purchase this plan as is or request modifications. Add your notes to the popout form with the link below or give us a call to discuss your plan.