Skip to the content

Plan #

S-40x61

Base Price

$350

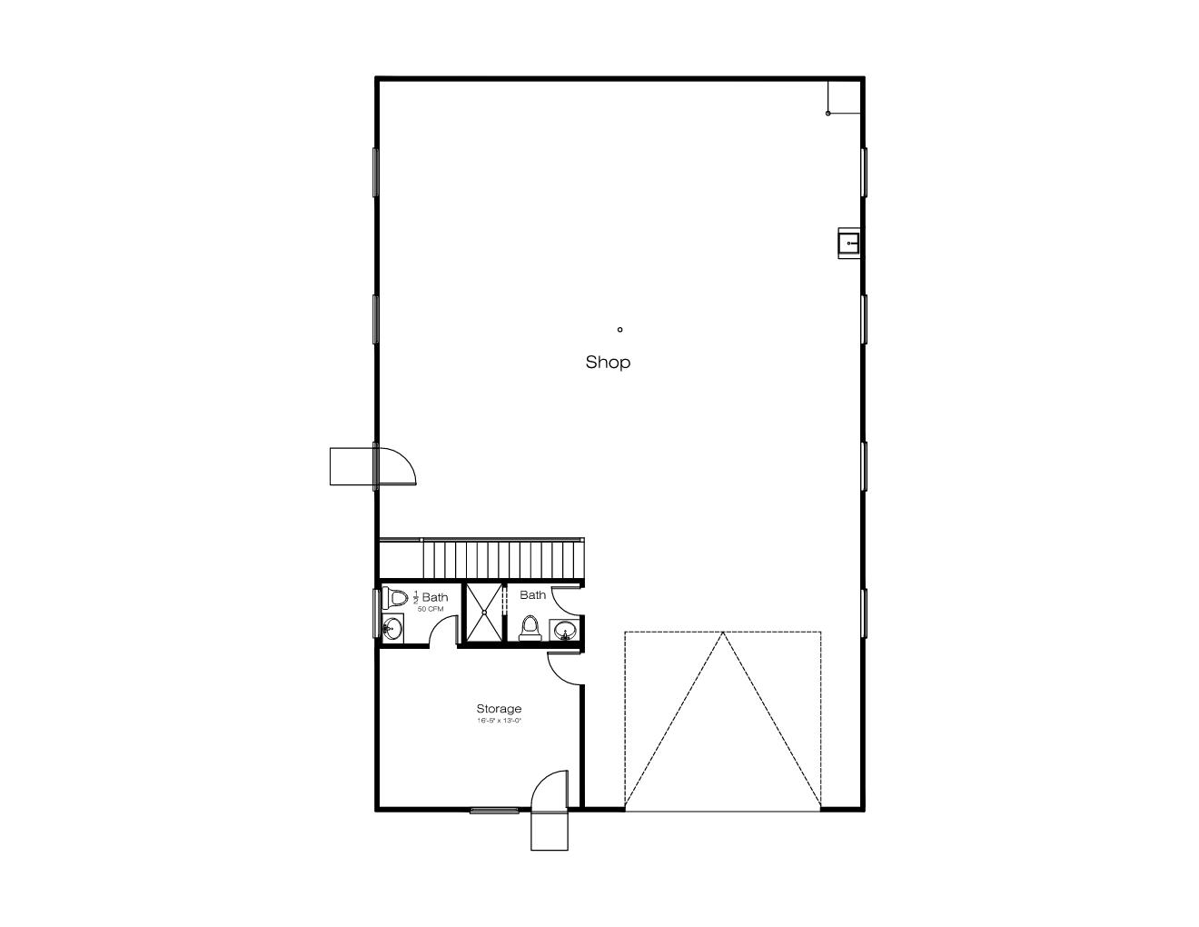
Shop

  • Total Sq. Ft.

    303
    1 Story
  • Beds

    1
    0 on main floor
  • Baths

    2-1/2
  • Bays

    1
  • Width

    40'
  • Depth

    60'

Plan Information

Main Floor Square Feet
0
Second Floor Square Feet
303
Main Floor Wall Height
14'
Foundation Type
Slab on Grade
Slab on Grade Square Feet
2400
Primary Roof Pitch
5/12
Base Price - PDF - Single Build
$350
PDF - 5 Sets Printed - Single Build
$400
CAD File - Unlimited Build
$1000

Special Features

  • Shop With Living Area

Interested in this plan?

Purchase this plan as is or request modifications. Add your notes to the popout form with the link below or give us a call to discuss your plan.