Skip to the content

Plan #

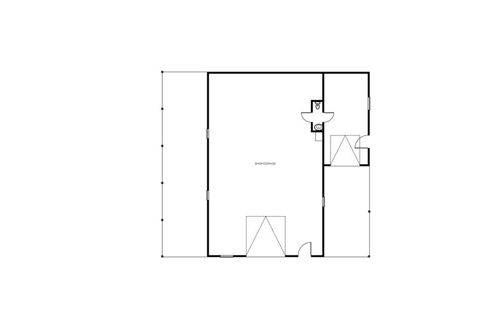
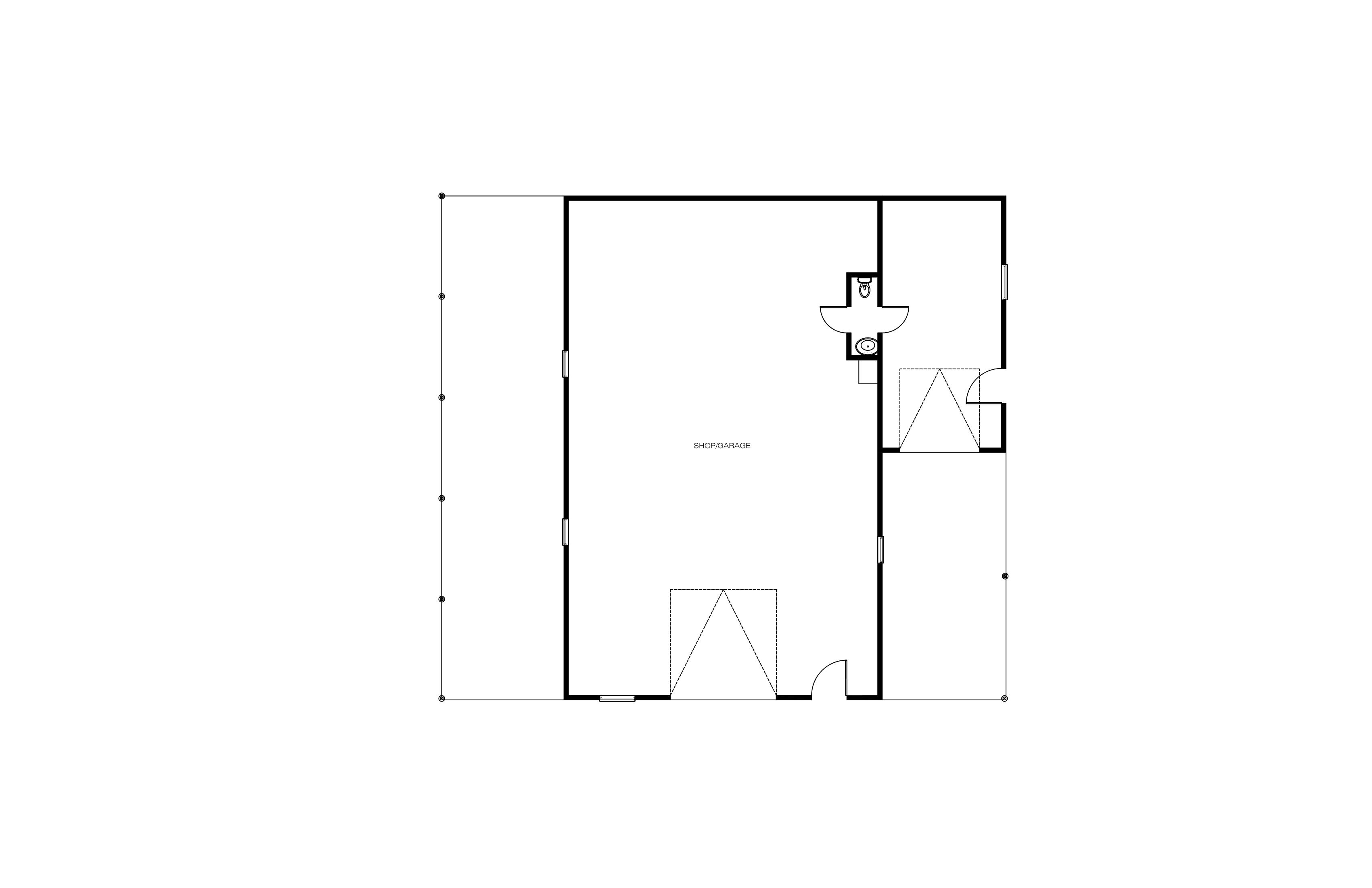
S-50x57

Base Price

$300

Shop

  • Total Sq. Ft.

    2458
    1 Story
  • Beds

    0
    0 on main floor
  • Baths

    1/2
  • Bays

    2
  • Width

    50'- 0"
  • Depth

    57'- 0"

Plan Information

Garage Square Feet
2458
Main Floor Wall Height
10'- 0"
Foundation Type
Slab on Grade
Primary Roof Pitch
4/12
Base Price - PDF - Single Build
$300
PDF - 5 Sets Printed - Single Build
$350
CAD File - Unlimited Build
$1000

Special Features

Interested in this plan?

Purchase this plan as is or request modifications. Add your notes to the popout form with the link below or give us a call to discuss your plan.