Skip to the content

Plan #

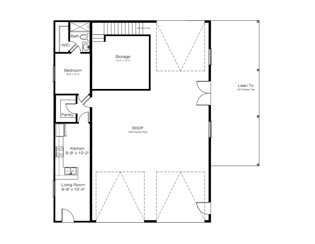
S-51x50

Base Price

$350

Shop

  • Total Sq. Ft.

    1950
    1 Story
  • Beds

    1
    1 on main floor
  • Baths

    1
  • Bays

    2
  • Width

    51'
  • Depth

    50'

Plan Information

Main Floor Square Feet
1950
Main Floor Wall Height
16'
Foundation Type
Slab on Grade
Primary Roof Pitch
6/12
Base Price - PDF - Single Build
$350
PDF - 5 Sets Printed - Single Build
$400
CAD File - Unlimited Build
$1000

Special Features

  • Walk In Pantry
  • Shop With Living Area

Interested in this plan?

Purchase this plan as is or request modifications. Add your notes to the popout form with the link below or give us a call to discuss your plan.