Skip to the content

Plan #

S-54x40

Base Price

$350

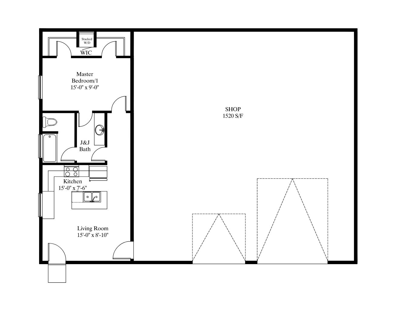
Shop

  • Total Sq. Ft.

    640
    1 Story
  • Beds

    1
    1 on main floor
  • Baths

    1
  • Bays

    2
  • Width

    54'-0"
  • Depth

    40'-0"

Plan Information

Main Floor Square Feet
640
Garage Square Feet
1520
Main Floor Wall Height
14'
Foundation Type
Crawl Space
Primary Roof Pitch
5/12
Base Price - PDF - Single Build
$350
PDF - 5 Sets Printed - Single Build
$400
CAD File - Unlimited Build
$1000

Special Features

  • Secluded Master Bedroom
  • Shop With Living Area

Interested in this plan?

Purchase this plan as is or request modifications. Add your notes to the popout form with the link below or give us a call to discuss your plan.