Skip to the content

Plan #

S-62x44

Base Price

$350

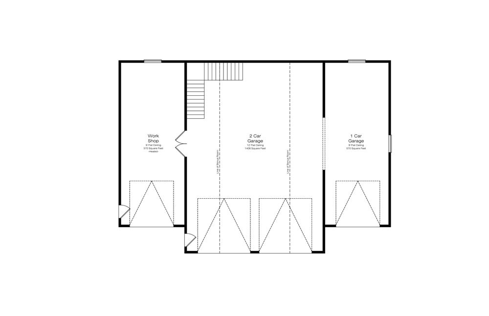
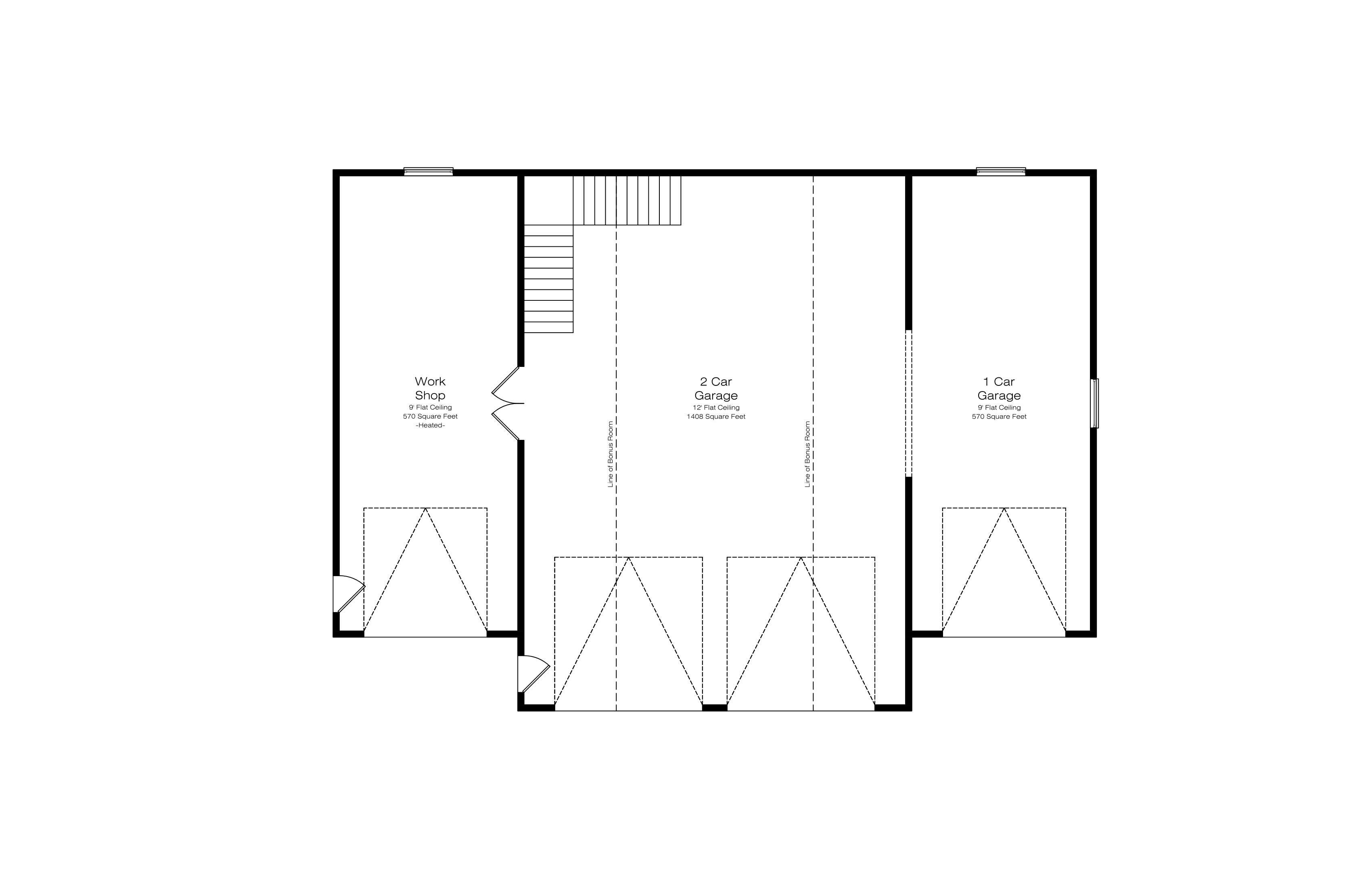
Shop

  • Total Sq. Ft.

    3264
    1 Story
  • Beds

    0
    0 on main floor
  • Baths

    0
  • Bays

    4
  • Width

    62'- 0"
  • Depth

    44'- 0"

Plan Information

Bonus Room Square Feet
680
Garage Square Feet
2584
Main Floor Wall Height
12'- 0"
Foundation Type
Slab on Grade
Primary Roof Pitch
10/12
Base Price - PDF - Single Build
$350
PDF - 5 Sets Printed - Single Build
$400
CAD File - Unlimited Build
$1000

Special Features

  • Bonus Room

Interested in this plan?

Purchase this plan as is or request modifications. Add your notes to the popout form with the link below or give us a call to discuss your plan.